Erstellt eine Ortho-Stücklistentabelle.
Multifunktionsleiste: Registerkarte Ortho-Ansicht
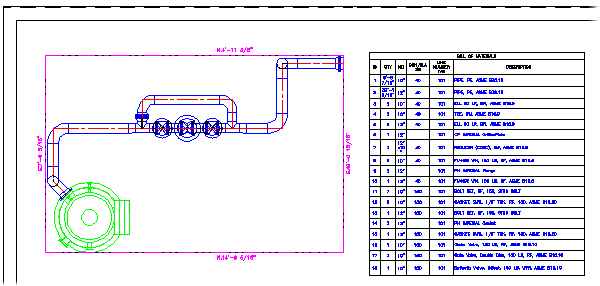
Tabelle einrichten 
Befehlseingabe:
plantorthoplacebom Die folgenden Eingabeaufforderungen werden angezeigt.
Ansichtsfenster wählen: Wählen Sie ein orthogonales Ansichtsfenster aus.
Zu platzierende Tabelle wählen [Stückliste/Apparate/Stutzen/Stahl/Verbindungsrohr] <Stückliste>: Geben Sie die Stücklistentabelle an, die in der orthogonalen Zeichnung erstellt werden soll.
Erste Ecke angeben: Geben Sie die obere linke Ecke der Ortho-Stücklistentabelle ein.
Zweite Ecke angeben: Geben Sie die Tabellenbreite an. Die festgelegte Höhe wird ignoriert.
