In dieser Übung fügen Sie dem Gebäudemodell Bemaßungen hinzu, um die Maße für die Grundfläche des Hauptgebäudes anzugeben.
|
Kategorie
|
Neue Benutzer
|
|
Erforderliche Zeit
|
15 Minuten
|
|
Verwendete Lernprogrammdateien
|
GSG_11_dimensions.rvt
|
|
Bevor Sie beginnen, laden Sie die Datei GSG_11_dimensions.rvt herunter. Laden Sie diese ZIP-Datei herunter (sofern Sie die Übungsdateien für die Lernprogramme noch nicht heruntergeladen haben).
Ziele
- Bemaßen der Breite des Gebäudes.
- Verwenden Sie die Option für Rasterverschneidungen mit einer ausgerichteten Bemaßung, um automatisch Rasterverschneidungen beim Bemaßen von Außenwänden einzubeziehen.
- Verwenden Sie die Option Öffnungen mit einer ausgerichteten Bemaßung, um Fensteröffnungen beim Bemaßen der Außenwand automatisch einzuschließen.
Video ansehen
Hinzufügen von Bemaßungen
- Öffnen Sie das Projekt GSG_11_dimensions.rvt.
- Stellen Sie sicher, dass der Grundriss 01 - Store Floor geöffnet ist.
- Klicken Sie auf Registerkarte Beschriften
Gruppe Bemaßung
(Ausgerichtet).
- Wählen Sie in der Optionsleiste die Option Kanten Wand und für Auswählen die Option Referenzen.
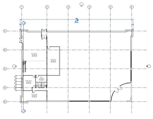
- Bemaßen der Breite des Gebäudes:
- Klicken Sie auf die Außenseite der Westwand.
- Klicken Sie auf die Außenseite der Ostwand.
- Bewegen Sie den Mauszeiger oberhalb des Gebäudes, und klicken Sie, um die Bemaßung zu platzieren.
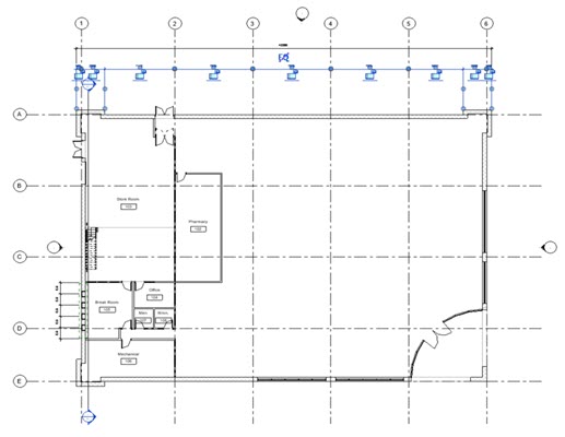
Bemaßen von Rastern
- Gehen Sie in der Optionsleiste wie folgt vor:
- Klicken Sie auf Registerkarte Beschriften
Gruppe Bemaßung
(Ausgerichtet).
- Wählen Sie für Auswählen die Option Wände.
- Klicken Sie auf Optionen.
- Wählen Sie im Dialogfeld Automatische Bemaßungsoptionen die Option Rasterverschneidungen, und klicken Sie auf OK.
- Bemaßen der Fensteröffnungen und Schnittpunkte für die Südwand:
- Klicken Sie auf die versetzte nördliche Außenwand.
- Klicken Sie auf die Ost- und Westwände.
- Bewegen Sie den Mauszeiger oberhalb des Gebäudes, und klicken Sie, um die Bemaßung zu platzieren.
- Klicken Sie auf Ändern.
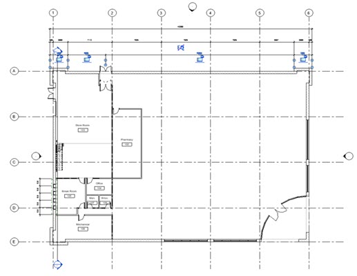
Bemaßen von Öffnungen
- Gehen Sie in der Optionsleiste wie folgt vor:
- Klicken Sie auf Registerkarte Beschriften
Gruppe Bemaßung
(Ausgerichtet).
- Wählen Sie für Auswählen die Option Wände.
- Klicken Sie auf Optionen.
- Wählen Sie im Dialogfeld Automatische Bemaßungsoptionen die Option Öffnungen, und klicken Sie auf OK.
- Bemaßen der Fensteröffnungen und Schnittpunkte für die Südwand:
- Klicken Sie auf die versetzte nördliche Außenwand.
- Klicken Sie auf die Ost- und Westwände.
- Bewegen Sie den Mauszeiger oberhalb des Gebäudes, und klicken Sie, um die Bemaßung zu platzieren.
- Klicken Sie auf Ändern.
Teil 12: Hinzufügen von Anmerkungen