Videos: Dokumentieren und Präsentieren des Entwurfs
Erstellen, beschriften und verfeinern Sie die Projektdokumentation, um Ihre Entwürfe Teammitgliedern, Beratern, Kunden und Bauunternehmen anschaulich zu vermitteln.
Video: Anpassen einer Perspektivansicht
Sie können eine Perspektivansicht nach der Erstellung mit einer der drei folgenden Methoden anpassen: Direktbearbeitung, Navigationsrad oder 3D-Navigation.
Video: Arbeiten in einer perspektivischen Ansicht
Beim Arbeiten in einer orthogonalen oder perspektivischen 3D-Ansicht können Sie Gebäudeelemente hinzufügen und ändern, um den Entwurf zu entwickeln und zu verfeinern.
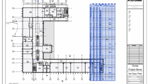
Video: Auswählen von Feldern für eine Bauteilliste
Wählen Sie beim Erstellen einer Bauteilliste die mit aufzunehmenden Felder über die Registerkarte Felder des Dialogfelds Bauteillisteneigenschaften aus.
Video: Filtern einer Bauteilliste nach Plan
In diesem Lernprogramm erfahren Sie, wie Sie Elemente in einer Bauteilliste anhand der Ansichten filtern, die auf demselben Plan wie die Bauteilliste platziert werden.
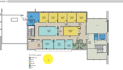
Video: Einen Möbelplan mit Bildern erstellen
Nehmen Sie beim Erstellen einer Möbelliste Bilder mit auf, indem Sie sie mithilfe der Typ- und Instanzeigenschaften mit Modellelementen verknüpfen.
Video: Erstellen einer eingebetteten Bauteilliste
Mit eingebetteten Bauteillisten können Sie Informationen zu den Bauteilen in den Kategorien Räume, MEP-Räume, Luftkanalsysteme, Rohrsysteme oder elektrische Stromkreise anzeigen.
Video: Kombinieren von Parametern in Bauteillisten
Beim Erstellen oder Bearbeiten einer Bauteilliste, kombinieren Sie zwei oder mehr Parameter in einer einzigen Zelle der Bauteilliste, indem Sie das Dialogfeld Bauteillisteneigenschaften verwenden.
Video: Erstellen eines Hinweisblöcken
Fügen Sie einen Hinweisblock (Anmerkungsplan) hinzu, um generische nummerierte Anmerkungsblätter in einem Modell zu erstellen.
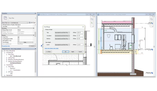
Video: Ändern von Bemaßungswerten
Ändern Sie den Wert einer permanenten Bemaßung, indem Sie ein Element verschieben oder eine Überschreibung erstellen.
Video: Exportieren einer Walkthrough-Animation
Um das Modell bei Kunden oder Teammitgliedern zu präsentieren, exportieren Sie den Walkthrough in ein Video (AVI-Datei) oder in eine Reihe von Bildern.
Video: Freigeben von DWG-Exporteinrichtungen
Speichern Sie benutzerdefinierte Einstellungen für den Export von DWG-Dateien in einem Vorlagenprojekt, damit Sie sie wiederverwenden können.
Video: Steuerung verdeckter Linien
Mithilfe des Werkzeugs Verdeckte Linien Ansichtsparameter anzeigen, die Verdeckte Linien in Modellansichten steuern.
Video: Tiefenabschwächung
Erzielen Sie einen Tiefeneffekt, indem die Farben von Objekten mit zunehmender Entfernung vom Betrachter stärker mit der Hintergrundfarbe gemischt werden.
Video: Skizzenartige Linien
Verwenden Sie skizzenartige Linien, um Ihre Arbeit wie eine Handskizze aussehen zu lassen.