When placing a view on a sheet, you can hide parts of the view to focus on one area.
Use one or both of the following techniques:
Duplicate.) Open the duplicate view, and apply crop regions and masking regions as needed. Then place the duplicate view on the sheet.
3D Perspective Views. The Crop View parameter must be selected on a perspective view in order for it to be placed on a sheet. Once placed on a sheet, the Crop View parameter will unable to be changed for the view. Likewise, if you change a parallel 3D view on a sheet to a perspective view, the Crop View parameter is automatically enabled.
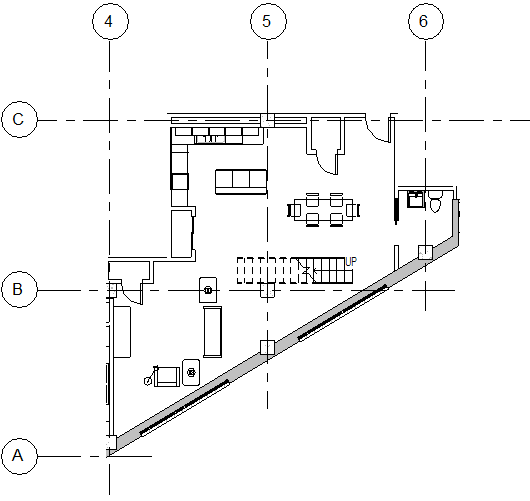
In the following floor plan, a non-rectangular crop region hides irrelevant model geometry in the upper-right and upper-left corners of the apartment unit.

