In this exercise, you work on different levels to add exterior walls, interior walls and a corridor to the project.
|
Category
|
New Users
|
|
Time Required
|
15 minutes
|
|
Tutorial Files Used
|
GSG_02_Create_Walls.rvt
|
|
Before you begin, download the GSG_02_Create_Walls.rvt data file.
Download this zip file (if you have not already downloaded the exercise files for the tutorials.)
Objectives
- Add exterior walls by drawing them using selected points.
- Add interior walls to the lower level using the Wall tool.
- Use the Trim/Extend tool to create an opening for a corridor.
Watch the video
Modify Exterior Walls
- Working in the 3D view, select the walls in the corners of the building. Use a containing window selection and hold CTRL to add walls to the selection.
- On the Properties palette, for Top Constraint, select 04 - Upper Parapet and click Apply.
- Press ESC to deselect the walls.
- Select the two walls at the front right corner of the building. On the Properties Palette, set the Base Offset to 4250mm.
- On the Type selector, change the wall type to Exterior - Render on Brick on Block @ Entry.
Add Interior Walls
- In the Project Browser, under Floor Plans, double-click 01 - Store Floor.
- Click Architecture tab
Build panel
(Wall).
- In the Type Selector, select Interior - 138mm Partition (1- hr).
- On the Options Bar:
- For Height, select 03 Lower Parapet.
- For Location Line, select Wall Centerline.
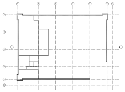
- Using the following image as a guide, place interior walls to create rooms:
- Exact placement is not critical.
- When laying out walls, It may be useful to enable or disable the Chain option. Chain allows you to place multiple walls end to end. With Chain disabled, both endpoints of each wall must be specified. Experiment with both settings.
- Modify walls to create a corridor:
- Click
(Modify) to complete the command.
Part 3: Creating a Terrain and Building Pad