In this exercise, you create a flat roof using the footprint of the exterior walls and a sloped roof with an overhang at the entry.
|
Category
|
New Users
|
|
Time Required
|
10 minutes
|
|
Tutorial Files Used
|
GSG_05_add_roof.rvt
|
|
Before you begin, download the GSG_05_add_roof.rvt file.
Download this zip file (if you have not already downloaded the exercise files for the tutorials.)
Objectives
- Add roof lines with a slope and an overhang defined.
- Add a flat roof.
- Attach interior walls to the roof.
Watch the video
Draw the Roof
- Open project GSG_05_add_roof.rvt.
- Open the 02 - Lower Parapet floor plan.
- Click Architecture tab
Roof drop-down
(Roof by Footprint).
- Create a sloped roof with an overhang:
- On the Draw panel, click
(Pick Walls).
- On the Options Bar, for Overhang, enter 600, and select Defines slope.
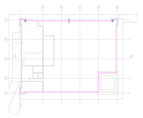
- In the drawing area, highlight an entry wall. When a dashed line is displayed on the exterior of the wall, press Tab to select the chain of walls, and click to place the roof lines.
- On the Properties palette, set the Base Level to 03 - Upper Parapet.
- On the Mode panel, click
(Finish) to place the roof.
- Click Modify to end the command.
- Draw a flat roof:
- On the Properties palette, set the Underlay value to 01 - Store Floor.
- Click Architecture tab
Roof drop-down
(Roof by Footprint).
- On the Draw panel, click
(Pick Walls).
- On the Options Bar, set overhang to 0 and clear Defines slope.
- On the Properties palette, set Base Offset from Level to -750.
- In the drawing area, do the following:
- Highlight an exterior wall.
- Press Tab to select the chain of walls.
- Click to place the roof lines.
- On the Mode panel, click
(Finish).
Part 6: Placing Doors