Créez des connecteurs de façon dynamique en définissant les paramètres du connecteur, tels que le nombre, l'espacement et les valeurs des broches.
L'outil Insérer le connecteur permet de générer un symbole de connecteur à partir de paramètres définis par l'utilisateur. Le symbole est créé à la volée et inséré en tant que bloc dans le fichier de votre dessin actif. Etant donné que ces symboles sont créés en fonction des besoins, il est inutile de créer et de gérer une bibliothèque de symboles de connecteur.
Modification des propriétés du dessin


. Trouver
Composants, sélectionnez Séquentiel.
Numéros d'équipotentielles, sélectionnez Dans la lignée du fil.
Ajout de connecteurs au dessin


. Trouver
Espacement des broches : 1.0
Nombre de broches : 15
Espacement fixe
Liste des broches : 1
Insérer tout

L'aperçu ressemble à l'image qui suit.

Un aperçu du connecteur s'affiche pour montrer sa position dans le dessin. Il affiche les angles arrondis du côté de la prise du connecteur. Un "x " indique le point d'insertion du connecteur. Une flèche indique le sens de connexion des fils du côté prise pour les connecteurs à prise/prise de courant ou à prise uniquement, ou montre le sens de connexion des fils pour un connecteur à prise de courant uniquement.
Spécifiez le point d'insertion ou [Z=zoom, P=panoramique, X=intersection des fils, V=horizontal/vertical, TAB=basculer] :
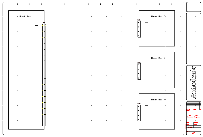
Placez le connecteur au milieu de la bordure droite de la boîte noire 1

Le repère de composant PJ1 a été automatiquement affecté au connecteur.


. Trouver
Espacement des broches : 0.75
Nombre de broches : 4
Espacement fixe
Liste des broches : A
Insérer tout
L'aperçu ressemble à l'image qui suit.

Spécifiez le point d'insertion ou [Z=zoom, P=panoramique, X=intersection des fils, V=horizontal/vertical, TAB=basculer] :
connecteur Boîte noire 2

Le repère de composant PJ2 a été automatiquement affecté au connecteur.
Les repères de composants PJ3 et PJ4 ont été automatiquement affectés aux connecteurs.
