Utilizzo degli strumenti Inserisci filo e Bus multipli per aggiungere i fili tra i connettori.
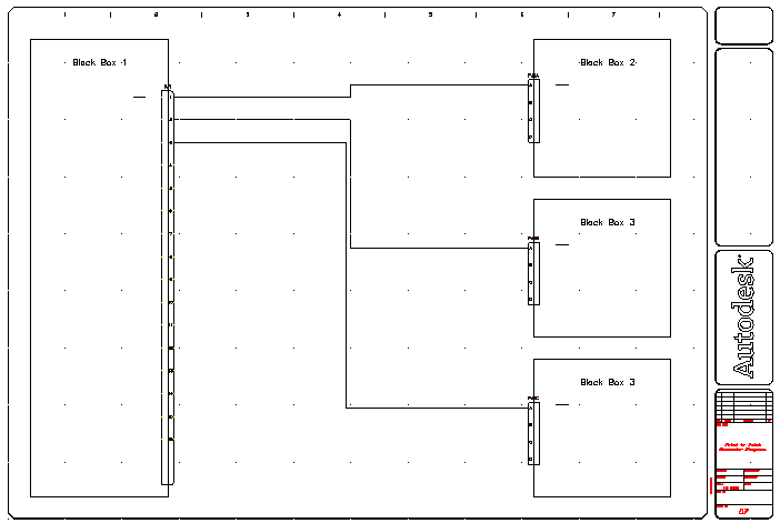
Il black box 1 è associato ad un componente più grande, ad esempio un power box. I black box 2-4 sono componenti sono i componenti più piccoli, che costituiscono il power box. I componenti devono essere cablati tra loro. A tale scopo, utilizzare gli strumenti Inserisci filo e Bus a più fili.
Connessione di un connettore all'altro


. Trova
Specificare inizio filo o [tipo filo/X=mostra connessioni]:
Fare clic su PJ1 in corrispondenza del pin 1 nel black box 1
Specificare l'estremità filo o [Continua]: Fare clic su PJ2 in corrispondenza del pin A nel black box 2

Lo strumento Inserisci filo ha disegnato il filo tra i connettori evitando l'eventuale geometria presente sullo schermo.

. Trova
Spaziatura orizzontale: 0.75
Spaziatura verticale: 0.50
Inizio in: Componente (più fili)

Tracciare un riquadro di selezione attorno ai punti di connessione iniziali del filo
Selezionare i pin 5-7 nel black box 1 (1) e fare clic con il pulsante destro del mouse
a (T= tipo filo):
Trascinare i fili verso destra oltre i tre fili inseriti,
a punto (Continua/Inverti):
Trascinare i fili in alto verso PJ2 nel black box 2, immettere C e premere INVIO (per continuare e bloccare il trascinamento).
a (Continua/Inverti):
Trascinare i fili a destra e connetterli ai pin B-D su PJ2 (2)


. Trova
Tracciare un riquadro di selezione attorno ai punti di connessione iniziali del filo:
Selezionare i pin 9-11 nel black box 1 e fare clic con il pulsante destro del mouse
a (T= tipo filo):
Trascinare i fili a destra,
a punto (Continua/Inverti):
Trascinare i fili in alto verso PJ3 nel black box 3, immettereC e premere INVIO(per continuare e bloccare il trascinamento)
a (Continua/Inverti):
Trascinare i fili verso destra e connetterli ai pin B-D su PJ3

. Trova
Tracciare un riquadro di selezione attorno ai punti di connessione iniziali del filo:
Selezionare i pin 13-15 nel black box 1 e premereINVIO
a (T= tipo filo):
Trascinare i fili a destra,
a punto (Continua/Inverti):
Trascinare i fili in basso verso PJ4 nel black box 4, immettereCe premereINVIO(per continuare e bloccare il trascinamento).
a (Continuare/Invertire):
Trascinare i fili verso destra e connetterli ai pin B-D su PJ4
