概要 - 包絡処理ハッチング

包絡処理ハッチング コンポーネントでは、断面線分によって切断されたすべてのオブジェクト面が結合されてハッチングされます。 包絡処理ハッチングは、外側または内側の包絡処理線分コンポーネントに定義します。 このコンポーネントは、2D 断面図だけで使用されます。

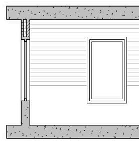
包絡処理の詳細からガラスが除外された包絡処理ハッチング

包絡処理ハッチング コンポーネントは、マテリアル コンポーネントに定義できません。

注: 包絡処理ハッチング コンポーネントと断面ハッチング コンポーネントは、相互に重なって表示されます。 このため、1 つの場所に 2 つの異なるハッチングが表示されることがあります。 ハッチングが競合しないようにするには、包絡処理ハッチングにソリッド ハッチングを割り当てるか、包絡処理ハッチング コンポーネントと断面ハッチング コンポーネントは同時に使用しないでください。