Neste exercício, você vai adicionar cotas ao modelo de construção para dimensionar o perímetro do edifício principal.
|
Antes de começar, faça o download do arquivo GSG_11_dimensions.rvt. Faça o download deste arquivo zip (se você ainda não tiver feito o download dos arquivos de exercícios para os tutoriais).
Objetivos
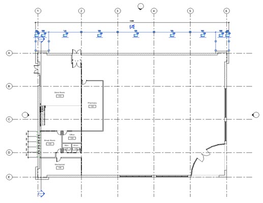
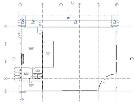
painel Cota
(Alinhado).

painel Cota
(Alinhado).

painel Cota
(Alinhado).
