В этом упражнении ведется работа над внутренней частью модели путем добавления лестницы к полуэтажу на нижнем уровне и изменения ограждения на полуэтаже.
|
Категория
|
Новые пользователи
|
|
Требуемое время
|
15 мин.
|
|
Используемые учебные файлы
|
GSG_09_stairs_railings.rvt
|
|
Сначала скачайте файл GSG_09_stairs_railings.rvt. Скачайте этот файл ZIP (если файлы упражнений для учебных пособий еще не скачаны).
Цели
- Создание лестницы между этажом магазина и полуэтажом.
- Изменение лестничного ограждения с включением в него полуэтажа.
- Изменение типа ограждения на трубчатые перила.
Просмотреть видеоролик
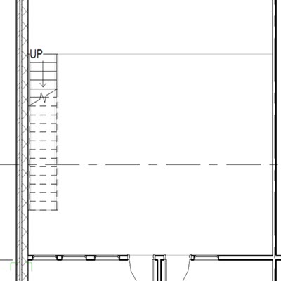
Создание лестницы
- Откройте проект GSG_09_stairs_railings.rvt.
- Убедитесь, что открыт план этажа «01 — Этаж магазина».
- Выберите вкладку «Архитектура»
панель «Движение»
(«Лестница»).
- На палитре свойств в разделе «Зависимости» выполните следующие действия:
- Для параметра «Базовый уровень» выберите значение «01 — Этаж магазина».
- Для параметра «Верхний уровень» выберите значение «Полуэтаж».
- На вкладке «Изменить | Создать лестницу» перейдите на панель «Создание лестниц» и задайте для линии привязки значение «Марш: слева».
- В складском помещении щелкните угол подложки полуэтажа, указав тем самым начальную точку лестничного марша.
- Переместите указатель вниз, пока не появится всплывающая подсказка о том, что осталось 0 подступенков, а затем щелчком укажите конечную точку лестницы.
- На панели «Режим» щелкните значок
(«Выход из режима редактирования»).
Изменение типа ограждения
- На панели быстрого доступа щелкните значок
("3D-вид по умолчанию").
- Выберите плоскую крышу, а затем нажмите значок
(Временное скрытие/изоляция) на панели управления видом и выберите «Скрыть элемент».
- Выберите ограждение на стороне лестницы рядом со стеной.
- В списке «Выбор типа» укажите «Стенка трубы 900 мм».
- В диалоговом окне с предупреждением нажмите «Удалить тип».
- Выберите ограждение с другой стороны лестницы.
- В списке «Выбор типа» выберите «Труба 900 мм».
Часть 10. Создание видов