比較する同一図面の異なるバージョン、または 2 つの異なる図面を開きます。
2D 比較ツールは、次のファイル タイプに対して使用でできます。
2D 図面を開きます。
画面下部のツールバーで、[比較]
をクリックします。
バージョン ドロップダウンを使用して同じドキュメントの異なるバージョンを選択するか、[変更]をクリックして完全に別のドキュメントを選択します。
2 つのドキュメントまたはバージョンを選択した後、[比較]をクリックします。

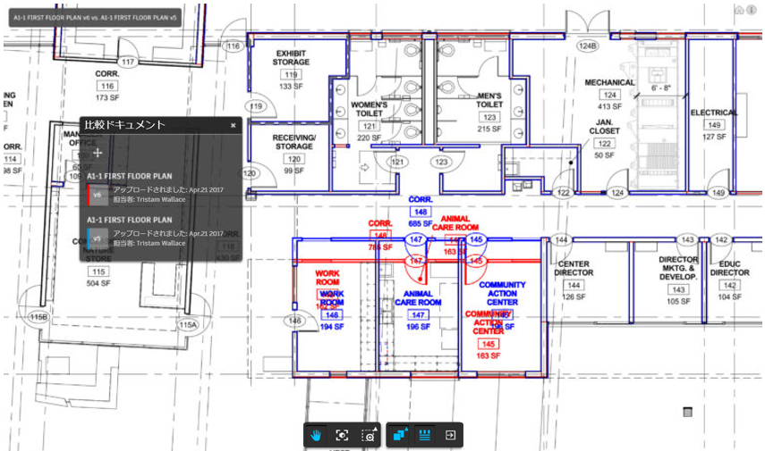
既定では、図面は赤と青で示された相違点を重ねた状態で表示されます。

2D RVT 図面の 2 つのバージョンを比較すると、2 つのバージョン間で追加された箇所(緑色)、削除された箇所(赤色)、または修正された箇所(黄色)に関するオブジェクトレベルの情報を識別することができます。色分けはモデル上に表示されるほか、[変更] および [情報] ダイアログ内の要素に対しても表示されます。 変更リストから項目を選択すると、図面上でその項目の場所がハイライト表示されます。

上記のように、比較の既定の表示モードは重ねて表示です。2 つの図面を並べて表示するには:

重ねて表示法は既定の比較法ですが、先に並べて表示モードに切り替えた場合は次のようにします。