The Family Editor is a graphical editing mode that allows you to create and modify families to include in your project.
When you start creating a family, you open a template to use in the editor. The template can include multiple views, such as plans and elevations. The Family Editor has the same look and feel as the project environment in Revit, but it features different tools. The availability of tools depends on the type of family you are editing.
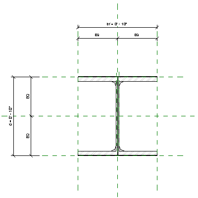
The following image shows a plan view of a wide flange column family in the Family Editor. The green dashed reference planes are used to constrain geometry in the family.

