Tag multiple rebar and rebar sets with a single annotation.
Video: Multi-Rebar Annotations
- Annotate tab
Tag panel
Multi-Rebar
(Aligned Multi-Rebar Annotation)
- Annotate tab
Tag panel
Multi-Rebar
(Linear Multi-Rebar Annotation)

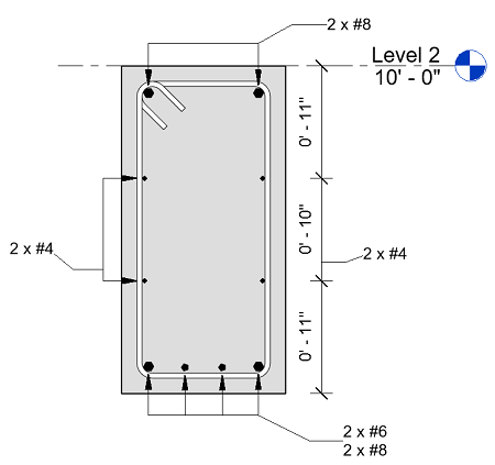
With multi-rebar annotations, you can select multiple aligned rebar and display the dimensions between the rebar references, as well as parameter data and positioning with respect to the rebar host.
