Export Sheets to PDF in Takeoff
You can export one or more sheets with takeoff as a PDF file. Save and share information with others who don’t have access to Autodesk Takeoff.
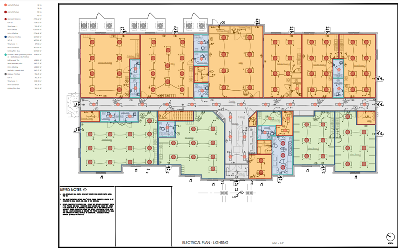
If a sheet being exported has takeoff, the sheet will list the takeoff as a legend on the page's left margin. In a long takeoff list, list items that extend beyond the available page area will not be included in the legend.
For each export to PDF:
- Maximum number of sheets that can be exported = 200
- Maximum number of takeoff types that can be filtered out at once = 1,000
To export sheets to PDF in Takeoff
In the Takeoff viewer, open a sheet that you want to export.
Click the Export sheet to PDF
icon in the upper right of the viewer.
Review and manage the export options in the Export sheet to PDF panel that opens.

Save as – Confirm the name of the PDF file to be created.
Include – In this dropdown, select the sheets you want to include in the export:
- Just this sheet
- All sheets with takeoff in the package
- Selected sheets with takeoff in the package
If you select Selected sheets with takeoff in the package, you will be able to select and deselect the sheets with takeoff to include in the export. By default, the export will contain the most recent sheets containing takeoff.
Filter by classifications and takeoff types – Click the dropdown to review and change the filters as needed. All available classifications and takeoff types for the selected sheets are automatically selected as filters. Deselect to remove these filters.
Note:A maximum of 1,000 takeoff types can be filtered out in one export.
Legend – Select to hide quantities on the sheet legend for sheets with takeoff.
Text size – You can choose Small, Medium, or Large for the sheet legend’s text size. If no selection is made, text size defaults to Medium.
Legend width – Choose Small, Medium, or Large for the width of the sheet legend. If no selection is made, the width defaults to medium.
Click Export PDF to export the sheets. The Export PDF button will indicate the number of sheets to be included in the export in parentheses.
Open the downloaded PDF to view the exported sheets. Be sure to save the PDF to share with others.

