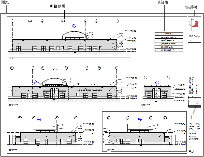
图纸概述

图纸是施工图文档集的一个独立的页面。在 Revit 中,为施工图文档集中的每个图纸创建一个图纸视图。然后在每个图纸视图上放置多个图形或明细表。

图纸的某些部分

Revit Structure

图纸的某些部分

将图纸添加到 Revit 项目中时,这些图纸会列在项目浏览器中的“图纸(all)”下。

图纸会列在项目浏览器中

Revit Structure

图纸会列在项目浏览器中

将图形或明细表移到图纸上时,会显示视口。视口是放置到图纸上的图形或明细表的表示。