V tomto výukovém programu jste se naučili základní pracovní postup pro vytvoření plechové součásti a umístění poznámek o plechu na výkres rozvinu. Některé klíčové body tohoto cvičení obsahují:
- Práce v kontextu sestavy; zvládli jste použít geometrii sestavy k definování klíčových aspektů návrhu pro vaši plechovou součást.
- Plechové prvky se často vytváří na jedné nebo druhé straně výběru, je tedy třeba brát v úvahu tloušťku materiálu nebo poloměr ohybu.
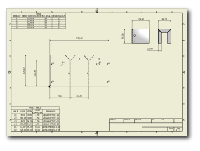
- iPrvky razníku plechu zjednoduší tvorbu jednoduchých i složitých (a tvarovaných) prvků řezu v modelu. iPrvky razníku nesou označení, které můžete opravit na výkresech v tabulce razníku.
- Ohyby vytvořené prvky zobrazují na rozvinu středovou čáru ohybu a rozsah ohybu. Tyto ohyby můžete snadno na výkresu poznat v tabulce ohybů, která obsahuje důležité výrobní atributy.
- Snadno se vytvoří rozvin vašeho složeného modelu a poskytne odpovídající reprezentaci rozvinutých zón ohybu mezi sousedícími prvky. Velikosti těchto rozvinutých zón ohybu jsou stanoveny pravidlem rozvinu, které je definováno v aktivním pravidle plechu používaném, když začnete nový plechový model ze šablony.
Co dál? - V dalším kroku pokračujte ve zkoumání funkcí plechu dokončením výukového programu Plechové součásti 2.
Předchozí
Kliknutím sem se vrátíte na domovskou stránku výukových programů.