
- Na pásu karet klikněte na
kartu Poznámka
panel Tabulka
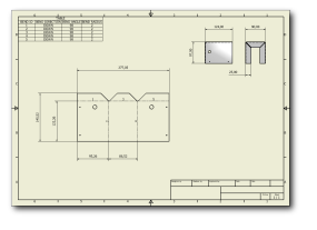
Pohled díry
(pomocí šipky dolů vpravo od položky Díra zobrazte Pohled díry).
- Přesuňte kurzor nad pohled rozvinu, dokud se nezobrazí zvýraznění hranic červeným tečkovaným pohledem a kliknutím pohled zvolte.
- Přesunujte kurzor dílčí základny podél dolní hrany rozvinu, dokud nedosáhnete levého rohu a dokud se nezobrazí označení „bod na“ vazbě.
- Kliknutím vyberte tento bod jako základnu pro kótování ražených děr.
- Přesuňte zobrazený obrys tabulky, aby byl vyrovnán s dolním levým rohem rámečku výkresu. Když se zobrazí označení „bod na“ vazbě, kliknutím tabulku vložte.
- Klikněte pravým tlačítkem myši na tabulce a z místní nabídky zvolením položky Upravit tabulku děr zobrazte dialog Upravit tabulku děr: Typ pohledu.
- V dialogu kliknutím na položku Výběr sloupce na kartě Formátování zobrazte dialog Výběr sloupce tabulky děr.
- V tomto dialogu zvolte položku Popis ze seznamu Zvolené vlastnosti a klikněte na příkaz Odstranit.
- Zvolte položku PRŮMĚR DÍRY v seznamu Dostupné vlastnosti a klikněte na příkaz Přidat.
- Zvolte položku ID RAZNÍKU v seznamu Dostupné vlastnosti a klikněte na příkaz Přidat.
- Kliknutím na tlačítko OK potvrďte nové uspořádání sloupců a zavřete dialog Výběr sloupce tabulky děr.
- Kliknutím na tlačítko OK v dialogu Upravit tabulku děr: Typ pohledu aktualizujte tabulku s novým uspořádáním sloupců a zavřete dialog.
- Uložte výkres rozvinu krytu.
Předchozí | Další