In diesem Lernprogramm haben Sie den grundlegenden Workflow zum Erstellen eines Blechbauteils und zum Platzieren von Anmerkungen in eine Abwicklungszeichnung kennen gelernt. In dieser Übung wurden unter anderem die folgenden Schlüsselpunkte behandelt:
- Arbeiten im Kontext einer Baugruppe. Sie konnten anhand einer Baugruppengeometrie Schlüsselaspekte der Konstruktion Ihres Blechbauteils definieren.
- Blechelemente werden häufig auf einer Seite einer Auswahl erstellt, um die Materialstärke oder den Biegeradius zu berücksichtigen.
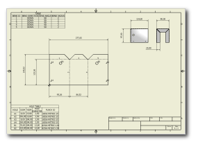
- Blechstanz-iFeatures vereinfachen die Erstellung einfacher und komplexer Schnittelemente (und Formelemente) in Ihrem Modell. Stanzungs-iFeatures verfügen über Attribute, die in einer Stanztabelle in Ihren Zeichnungen wiederhergestellt werden können.
- Für durch Elemente erstellte Biegungen werden in der Abwicklung Biegungsmittellinie und Biegungsenden in angezeigt. Biegungen können in Ihrer Zeichnung einfach durch eine Biegungstabelle angegeben werden, die wichtige Fertigungsattribute enthält.
- Die Abwicklung Ihres gefalteten Modells lässt sich einfach erstellen. In ihr werden die reduzierten Biegezonen zwischen aneinandergrenzenden Elementen genau dargestellt. Die Größe der reduzierten Biegezonen wird durch die in der aktiven Blechregel definierten Entfaltungsregel festgelegt. Die Blechregel wird verwendet, wenn Sie ein neues Blechmodell aus einer Vorlage erstellen.
Wie geht es weiter? Absolvieren Sie als nächsten Schritt das Lernprogramm Blechbauteile 2, um die Blechfunktionen noch besser kennen zu lernen.
Zurück
Klicken Sie hier, um zur Startseite mit den Lernprogrammen zurückzukehren.