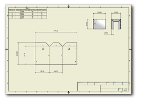
Hinzufügen einer Stanztabelle

  1. Klicken Sie in der Multifunktionsleiste auf Registerkarte Mit Anmerkung versehen Gruppe Tabelle Ansicht (klicken Sie auf den Pfeil nach unten rechts neben Bohrung, um Ansicht anzuzeigen).
  2. Bewegen Sie den Cursor auf die Abwicklungsansicht, bis die gepunktete rote Ansichtsbegrenzung markiert wird, und klicken Sie dann, um die Ansicht auszuwählen.
  3. Bewegen Sie den Bezugsstellencursor entlang der unteren Kante der Abwicklung, bis Sie die Ecke ganz links erreicht haben und die "Punkt an"-Abhängigkeit angegeben wird.
  4. Klicken Sie, um diesen Punkt als Bezugsstelle für die Bemaßung der gestanzten Bohrungen auszuwählen.
  5. Verschieben Sie den angezeigten Umriss der Tabelle so, dass er auf die untere linke Ecke des Zeichnungsrahmens ausgerichtet ist. Wenn die "Punkt an"-Abhängigkeit angezeigt wird, klicken Sie, um die Tabelle zu platzieren.
  6. Klicken Sie mit der rechten Maustaste auf die Tabelle, und wählen Sie aus dem Kontextmenü die Option Bohrungstabelle bearbeiten, um das Dialogfeld Bohrungstabelle bearbeiten: Ansichtstyp anzuzeigen.
  7. Klicken Sie im Dialogfeld auf der Registerkarte Formatierung auf Spaltenauswahl, um das Dialogfeld Spaltenauswahl Bohrungstabelle anzuzeigen.
  8. Wählen Sie in diesem Dialogfeld aus der Liste Ausgewählte Eigenschaften den Eintrag Beschreibung, und klicken Sie auf Entfernen.
  9. Wählen Sie in der Liste Verfügbare Eigenschaften den Eintrag BOHRUNGSDURCHMESSER, und klicken Sie auf Hinzufügen.
  10. Wählen Sie in der Liste Verfügbare Eigenschaften den Eintrag STANZ-ID aus, und klicken Sie auf Hinzufügen.
  11. Klicken Sie auf OK, um die neue Spaltenanordnung zu übernehmen, und schließen Sie das Dialogfeld Spaltenauswahl Bohrungstabelle.
  12. Klicken Sie im Dialogfeld Bohrungstabelle bearbeiten: Ansichtstyp auf OK, um die Tabelle mit der neuen Spaltenanordnung zu aktualisieren und das Dialogfeld zu schließen.
  13. Speichern Sie die Zeichnung des Schutzes Abwicklung.

Zurück | Weiter