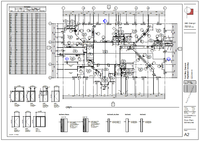
Schedules on Sheets

You can place schedules on sheets in a construction document set. The same schedule can reside on multiple sheets.

A schedule on a sheet