Crear un dibujo de ensamblaje

  1. Pulse Nuevo.
  2. En el cuadro de diálogo Crear nuevo archivo, haga clic en la carpeta de plantillas y seleccione Standard.idw en la categoría Dibujo y, a continuación, haga clic en Crear.
  3. En la vista de dibujo, haga clic en ficha Insertar vistas panel Crear Base .
  4. En el cuadro de diálogo Vista de dibujo, verifique que se selecciona el archivo Enclosure_assembly.iam. El archivo se encuentra en \Archivos de aprendizaje\Cable y arnés.
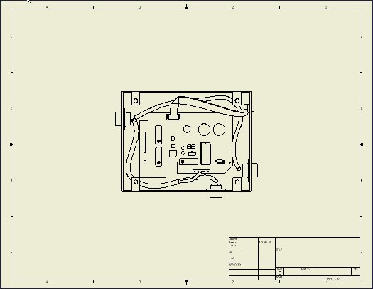
  5. Haga clic para colocar la vista como se muestra, pulse con el botón derecho del ratón y seleccione Terminar.
  6. En el navegador, expanda VIEW 1 y Enclosure_assembly.iam.
  7. Pulse con el botón derecho Harness_Assembly1 y seleccione Incluir ejes Conductores.

    Se muestran los ejes de todos los conductores.

  8. Pulse con el botón derecho Harness_Assembly2 y seleccione Incluir ejes Cables.
  9. Si lo desea, añada cotas y otras anotaciones.
  10. Guarde el archivo como Enclosure Assembly1.idw.

Anterior | Siguiente