Au cours de ce didacticiel, vous avez appris la procédure de base relative à la création d'une pièce de tôlerie et au placement des annotations de tôlerie sur un dessin de mise à plat. Les points clés de cet exercice sont les suivants :
- En travaillant dans le contexte d'un ensemble, vous avez pu utiliser la géométrie d'ensemble pour définir des aspects de conception clés d'une pièce de tôlerie.
- Les fonctions de tôlerie sont souvent créées sur un côté ou l'autre d'une sélection afin de prendre en compte l'épaisseur de la matière et le rayon de pliage.
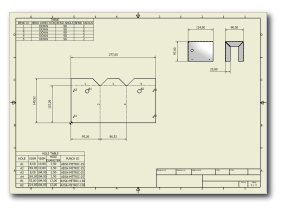
- Les iFonctions de poinçonnage de tôlerie simplifient la création de fonctions de coupe (et formées) simples et complexes sur votre modèle. Les iFonctions de poinçonnage possèdent des informations qui peuvent être récupérées dans une table de poinçonnage sur vos dessins.
- Les plis créés par les fonctions affichent le trait d'axe et l'encombrement des plis sur la mise à plat. Ces plis sont facilement identifiables dans une table de pliage sur le dessin qui contiendra d'importantes données de fabrication.
- La mise à plat du modèle plié est facile à créer et fournit une représentation précise des zones de plis mises à plat entre les fonctions adjacentes. La taille de ces zones pliées mises à plat est déterminée par la règle de dépliage définie dans la Règle de tôlerie active configurée dans le gabarit choisi lors de la création d'un modèle de tôlerie.
Etape suivante - Continuez à explorer la fonctionnalité de tôlerie en terminant le didacticiel Tôlerie - Partie 2.
Précédent
Cliquez ici pour revenir à la page d'accueil des didacticiels