Placer une table de poinçonnage

  1. Dans le ruban, cliquez sur l'onglet Annoter le groupe de fonctions Table Vue de perçage (Cliquez sur la flèche vers le bas située à droite du perçage pour afficher la vue de perçage.)
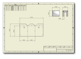
  2. Déplacez votre curseur au dessus de la vue de la mise à plat jusqu'à ce que vous voyiez une mise en surbrillance d'une bordure de vue rouge pointillée et cliquez pour sélectionner la vue.
  3. Déplacez le curseur de référence partielle le long de l'arête inférieure de la mise à plat jusqu'à ce que vous atteigniez le coin le plus à gauche et que la contrainte "pointer sur" soit indiquée.
  4. Cliquez pour sélectionner ce point comme référence pour la cotation des perçages poinçonnés.
  5. Déplacez le contour affiché de la table afin qu'il s'aligne avec le coin inférieur gauche du bord du dessin. Lorsque la contrainte "pointer sur" s'affiche, cliquez pour placer la table.
  6. Cliquez avec le bouton droit de la souris sur la table et choisissez Modifier la table de perçage dans le menu contextuel pour afficher la boîte de dialogue Modifier la table de perçage : Type de vue.
  7. Cliquez sur Sélecteur de colonne dans l'onglet Mise en forme de la boîte de dialogue pour afficher la boîte de dialogue Sélecteur de colonne de table de perçage.
  8. Dans cette boîte de dialogue, sélectionnez Description dans la liste Propriétés sélectionnées, puis cliquez sur Supprimer.
  9. Sélectionnez Diamètre de perçage dans la liste Propriétés disponibles et cliquez sur Ajouter.
  10. Sélectionnez ID de poinçonnage dans la liste des propriétés disponibles et cliquez sur Ajouter.
  11. Cliquez sur OK pour accepter la nouvelle disposition des colonnes et fermer la boîte de dialogue Sélecteur de colonne de table de perçage.
  12. Cliquez sur OK dans la boîte de dialogue Modifier la table de perçage : Type de vue pour mettre à jour la table qui utilise la nouvelle disposition de colonnes et fermer la boîte de dialogue.
  13. Enregistrer le dessin de la mise à plat du carter.

Précédent | Suivant