
- Ouvrez le fichier 2mm_inplace_guard_start.idw, situé sous \Tutorial Files\Cylinder Clamp.
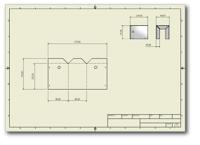
Remarque : Ce dessin contient plusieurs vues d'un exemple terminé de carter qui est fourni avec les fichiers de didacticiel exemple.
- Dans le ruban, cliquez sur l'onglet Annotation
le groupe de fonctions Table
Général . La boîte de dialogue Table s'affiche et le curseur de sélection de la vue est actif dans la fenêtre graphique.
- Déplacez votre curseur sur la vue de la mise à plat jusqu'à ce que vous voyiez une mise en surbrillance de limite de vue en pointillés rouges.
- Cliquez pour sélectionner la vue de la mise à plat comme vue source pour la table Général.
Remarque : Le type de table Général vous permettra une sélection de colonne unique pour le type de vue source sélectionné. Dans ce cas, la table fournira des informations de pliage.
- Cliquez sur OK dans la boîte de dialogue Table pour accepter les sélections par défaut, fermer la boîte de dialogue et placer la table.
- Déplacez votre curseur sur l'angle supérieur gauche du cadre de dessin. Lorsque le curseur change pour indiquer une contrainte "pointer sur", cliquez pour placer la table.
Une table est créée comportant les colonnes suivantes : ID pli, Sens du pliage, Angle de pliage et Rayon de pliage. Ces colonnes sont renseignées avec les valeurs relatives à chacun des plis dans la vue sélectionnée. Notez également que les numéros d'identification de pli ont été ajoutés à la vue de mise à plat à proximité des traits d'axe du pli.
La séquence de pliage identifiée risque de ne pas correspondre à la séquence que votre atelier de fabrication utilisera. La modification de l'ordre de pliage et l'ajustement de la table sont décrits dans le didacticiel Tôlerie - Partie 2.
Ensuite, vous placerez une table de poinçonnage sur le dessin.
Précédent | Suivant