
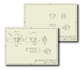
Questo file contiene un disegno semplice a due fogli a cui è possibile fare riferimento nel corso dell'esercitazione. Il primo foglio Sheet:1 del disegno include quattro viste della parte che verrà dettagliata nella prima fase di questa esercitazione. Nel secondo foglio Sheet:2 viene illustrato l'aspetto del disegno dopo l'aggiunta di una vista in sezione, di quote e annotazioni.

È possibile lasciare aperto questo disegno e continuare con l'esercitazione.
Nelle fasi successive, si selezionerà un modello per iniziare un nuovo disegno e si aggiungeranno viste anteriori, lato sinistro, dall'alto e assonometriche al foglio di disegno.