In questa esercitazione si è appreso un flusso di lavoro di base per la creazione di una parte in lamiera e il posizionamento di annotazioni sulla lamiera in un disegno del modello piatto. Punti chiave di questa esercitazione:
- Lavorando nel contesto di un assieme è stato possibile usare la geometria dell'assieme per definire gli aspetti chiave della progettazione della parte in lamiera.
- Le lavorazioni in lamiera vengono spesso create su un lato o l'altro di una selezione per prendere in considerazione lo spessore o il raggio piega del materiale.
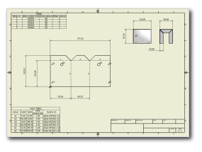
- Le iFeature punzone lamiera semplificano la creazione di lavorazioni di taglio semplici, complesse e modellate nel modello in uso. Le iFeature punzone presentano attributi che possono essere recuperati in una tabella punzone nel disegno.
- Le pieghe create dalle lavorazioni visualizzano una linea d'asse della piega ed estensioni piega nel modello piatto. Tali pieghe possono essere facilmente identificate in una tabella piega del disegno, che contiene importanti attributi per la produzione.
- Il modello piatto del modello piegato viene creato con facilità e fornisce una rappresentazione accurata delle zone di piega appiattite tra le lavorazioni adiacenti. Le dimensioni di queste zone di piega appiattite sono determinate dalla Regola spiegatura definita nella Regola lamiera attiva usata quando si crea un nuovo modello in lamiera da un modello.
Altre risorse - Il passo successivo prevede l'approfondimento dell'esplorazione delle lamiere completando l'esercitazione Parti in lamiera 2.
Indietro
Fare clic qui per tornare alla pagina iniziale delle esercitazioni