Posizionamento di una tabella punzone

  1. Nella barra multifunzione fare clic sulla scheda Annota gruppo Tabella Vista foro (utilizzare la freccia a destra di Foro per visualizzare la Vista foro).
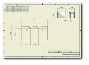
  2. Spostare il cursore sulla vista del modello piatto finché il contorno della vista non verrà evidenziato di rosso e fare clic per selezionare la vista.
  3. Spostare il cursore di riferimento parziale lungo lo spigolo inferiore del modello piatto finché non si raggiunge l'angolo più a sinistra e il punto sul vincolo non viene indicato.
  4. Fare clic per selezionare questo punto come riferimento per la quotatura dei fori punzonati.
  5. Spostare il contorno visualizzato della tabella in modo che sia allineata all'angolo inferiore sinistro della squadratura. Quando il punto sul vincolo è indicato, fare clic per posizionare la tabella.
  6. Fare clic con il pulsante destro del mouse sulla tabella e scegliere Modifica tabella fori dal menu contestuale per visualizzare la finestra di dialogo Modifica tabella fori: Tipo vista.
  7. Fare clic su Scelta colonne nella scheda Formattazione della finestra di dialogo per visualizzare la finestra di dialogo Scelta colonne tabella fori.
  8. In questa finestra di dialogo, selezionare Descrizione dall'elenco Proprietà selezionate e fare clic su Rimuovi.
  9. Selezionare DIAMETRO FORO nell'elenco Proprietà disponibili, quindi fare clic su Aggiungi.
  10. Selezionare ID PUNZONE nell'elenco Proprietà disponibili, quindi fare clic su Aggiungi.
  11. Fare clic su OK per accettare la nuova disposizione delle colonne e chiudere la finestra di dialogo Scelta colonne tabella fori.
  12. Fare clic su OK nella finestra di dialogo Modifica tabella fori: Tipo vista per aggiornare la tabella usando la nuova disposizione delle colonne e chiudere la finestra di dialogo.
  13. Salvare il disegno del modello piatto dell'elemento di protezione.

Indietro | Avanti