|
Categoria
|
Nuovi utenti |
|
Tempo richiesto
|
10 minuti |
|
File dell'esercitazione usati
|
GSG_13_sheets.rvt
|
|
In questo esercizio si creerà una tavola e si aggiungeranno più viste alla tavola. Si aggiungerà una vista di sezione alla tavola e si osserverà che il contrassegno di sezione nella vista di pianta viene aggiornato per includere le informazioni sulla tavola.
Obiettivi
- Creazione di una tavola mediante un modello di cartiglio.
- Aggiunta di viste alla tavola e modifica del posizionamento e del formato del titolo della vista.
Guarda il video
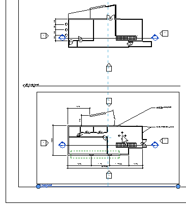
Creazione di una tavola
- Aprire il progetto GSG_13_sheets.rvt.
- Fare clic sulla scheda Vista
gruppo Composizione tavole
(Tavola).
- Nella finestra di dialogo Nuova tavola, in Seleziona cartigli, selezionare E1 30 x 42 Horizontal : E1 30 x 42 Horizontal, quindi fare clic su OK.
- Fare clic sul cartiglio per selezionare la tavola, fare clic sul numero della tavola, immettere A1 e premere INVIO.
Aggiunta di viste alla tavola
- Nel Browser di progetto, in Viste 3D, fare clic sul titolo della vista View to Building e trascinare l'elemento nell'angolo superiore sinistro della tavola, quindi rilasciare il pulsante del mouse.
Viene visualizzato un riquadro della vista per semplificare il posizionamento.
- Fare clic per posizionare la vista.
- Con lo stesso metodo, trascinare la vista di pianta del pavimento 02 - Entry Level Floor nella tavola e posizionarla al di sotto della vista View to Building, allineandola a sinistra rispetto a tale vista.
Nota: Per semplificare l'allineamento delle viste nella tavola, vengono visualizzate linee tratteggiate.
- Servirsi dello stesso metodo per trascinare la vista di pianta del pavimento 01 - Lower Level al di sotto della vista 02 - Entry Level, spostando la vista leggermente verso destra affinché sia allineata al centro rispetto alla vista superiore, quindi fare clic per posizionare la vista.
- Fare clic all'esterno della tavola per deselezionare la vista.
- Fare clic sul titolo della vista di pianta del pavimento 01 - Lower Level nella tavola e trascinarla verso sinistra per allinearlo al titolo della vista soprastante. Le linee tratteggiate consentono di semplificare l'allineamento.
- Premere ESC.
- Selezionare l'intera vista di pianta del pavimento 01 - Lower Level nella tavola (non solo il titolo), quindi trascinare il punto finale destro verso sinistra, per ridurre la linea del titolo orizzontale.
- Servirsi dello stesso metodo per accorciare le linee delle altre due viste.
- Nel Browser di progetto, in Sezioni (Building Section), fare clic sul titolo della vista Section 1 e posizionare la vista nella tavola.
- Eseguire lo zoom per visualizzare il contrassegno di sezione della vista di pianta del pavimento 01 - Lower Level nella tavola. Si potrà osservare che il contrassegno di sezione viene aggiornato, ad indicare che la vista Building Section è la quarta vista posizionata nella tavola A1.
Questo è l'ultimo esercizio del Manuale introduttivo.