이 튜토리얼에서는 판금 부품을 작성하고 플랫 패턴 도면에 판금 주석을 배치하는 기본 워크플로우에 대해 살펴보았습니다. 이 연습의 일부 핵심 사항은 다음과 같습니다.
- 조립품 컨텍스트 내에서 작업하여, 조립품 형상을 사용하여 판금 부품의 핵심 설계 측면을 정의할 수 있었습니다.
- 판금 피쳐는 흔히 재질 두께 또는 절곡부 반지름을 고려하기 위해 선택 항목의 한 측면 또는 나머지 측면에 작성됩니다.
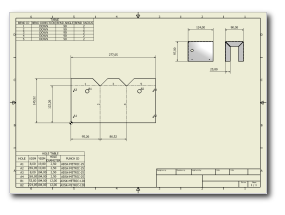
- 판금 펀치 iFeature는 모형에 단순한 절단부 및 복잡한 절단부(및 형성된) 피쳐를 작성하는 프로세스를 단순화합니다. 펀치 iFeature는 도면의 펀치 테이블에서 복구될 수 있는 속성을 가지고 있습니다.
- 피쳐에 의해 작성된 절곡부는 플랫 패턴에 절곡부 중심선과 절곡부 범위를 표시합니다. 이러한 절곡부는 중요한 제조 속성을 포함하고 있는 도면의 절곡부 테이블에서 쉽게 식별할 수 있습니다.
- 접힌 모형의 플랫 패턴은 쉽게 작성되고 인접한 피쳐 사이의 평평한 절곡부 영역을 정확하게 표현합니다. 이러한 평평한 절곡부 영역의 크기는 템플릿에서 새 판금 모형을 시작할 때 사용되는 활성 판금 규칙 내에서 정의된 전개 규칙에 의해 결정됩니다.
다음 사항 - 다음 단계에서는 판금 부품 2 튜토리얼을 완료함으로써 계속해서 판금 기능을 살펴봅니다.
이전
튜토리얼 홈 페이지로 돌아가려면 여기를 클릭하십시오.