펀치 테이블 배치

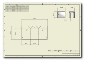
  1. 리본에서 주석 탭 테이블 패널 구멍 뷰 (구멍의 오른쪽에 있는 아래쪽 화살표를 사용하여 구멍 뷰 표시)를 클릭합니다.
  2. 점으로 표시된 빨간색 뷰 경계 강조 표시가 표시될 때까지 플랫 패턴 뷰 위로 커서를 이동하고 뷰를 클릭하여 선택합니다.
  3. 가장 왼쪽 구석에 도달하고 "위의 점" 구속조건이 표시될 때까지 플랫 패턴의 하단 모서리를 따라 데이텀 대상 커서를 이동합니다.
  4. 이 점을 클릭하여 펀치 구멍의 치수를 지정하기 위한 데이텀으로 선택합니다.
  5. 도면 경계의 왼쪽 하단 구석과 정렬되도록 테이블의 표시된 외곽선을 이동합니다. "점 위" 구속조건이 나타나면 클릭하여 테이블을 배치합니다.
  6. 테이블을 마우스 오른쪽 버튼으로 클릭하고 상황에 맞는 메뉴에서 구멍 테이블 편집을 선택하여 구멍 테이블 편집: 뷰 유형 대화상자를 표시합니다.
  7. 대화상자의 형식 지정 탭에서 열 선택자를 클릭하여 구멍 테이블 열 선택자 대화상자를 표시합니다.
  8. 이 대화상자의 선택된 특성 리스트에서 설명을 선택하고 제거를 클릭합니다.
  9. 사용 가능한 특성 리스트에서 구멍 지름을 선택하고 추가를 클릭합니다.
  10. 사용 가능한 특성 리스트에서 펀치 ID를 선택하고 추가를 클릭합니다.
  11. 확인을 클릭하여 새 열 정렬을 승인하고 구멍 테이블 열 선택자 대화상자를 닫습니다.
  12. 구멍 테이블 편집: 뷰 유형 대화상자에서 확인을 클릭하여 새 열 배열을 사용하는 테이블을 업데이트하고 대화상자를 닫습니다.
  13. 가드 플랫 패턴의 도면을 저장합니다.

이전 | 다음