플랫 패턴 도면 주석

  1. ₩Tutorial Files₩Cylinder Clamp에 있는 2mm_inplace_guard_start.idw 파일을 엽니다.
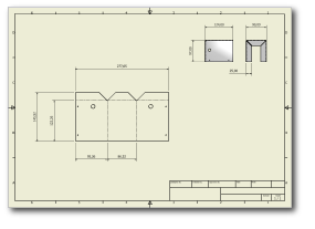
    주: 이 도면에는 튜토리얼 예제 파일로 제공된, 완성된 예제 가드에 대한 몇 가지 뷰가 포함되어 있습니다.
  2. 리본에서 주석 탭 테이블 패널 일반을 클릭합니다 . 테이블 대화상자가 표시되고 뷰 선택 커서가 그래픽 창에서 활성화됩니다.
  3. 점으로 표시된 빨간색 뷰 경계 강조 표시가 표시될 때까지 플랫 패턴 뷰 위로 커서를 이동합니다.
  4. 플랫 패턴 뷰를 클릭하여 일반 테이블에 대한 소스 뷰로 선택합니다.
    주: 일반 테이블 유형을 통해 선택된 소스 뷰 유형에 고유한 열을 선택할 수 있습니다. 이 연습에서는 테이블을 통해 절곡부 정보를 얻습니다.
  5. 테이블 대화상자에서 확인을 클릭하여 기본 선택 사항을 승인하고 대화상자를 닫은 다음 테이블을 배치합니다.
  6. 도면 경계의 왼쪽 위로 커서를 이동합니다. 커서가 변경되어 "위의 점" 구속조건을 나타내면 클릭하여 테이블을 배치합니다.

    선택한 뷰의 각 절곡부 값을 사용하여 절곡부 ID, 절곡부 방향, 절곡부 각도절곡부 반지름 열이 있는 테이블이 작성됩니다. 또한 절곡부 ID 번호가 절곡부 중심선 근처의 플랫 패턴 뷰에 추가되었습니다.

확인된 절곡부 순서는 가공 공장에서 사용하는 순서와 일치하지 않을 수 있습니다. 절곡부 순서 시퀀스 수정 및 테이블 조정에 대해서는 판금 부품 2 튜토리얼에서 다룹니다.

다음으로 도면에 펀치 테이블을 배치합니다.

이전 | 다음