W niniejszym ćwiczeniu zapoznaliśmy się z podstawowym procesem roboczym tworzenia części z konstrukcji blachowej i umieszczania opisów konstrukcji blachowej na rysunku rozwinięcia blachy. Wybrane elementy kluczowe niniejszego szkolenia:
- Podczas pracy w kontekście zespołu aby określić kluczowe aspekty części z konstrukcji blachowej, została użyta geometria zespołu.
- Elementy z konstrukcji blachowej są często tworzone podczas selekcji, aby uwzględnić grubość materiału lub promień zagięcia.
- Elementy iFeature otworów przebijanych w konstrukcji blachowej upraszczają tworzenie elementów ciętych (i formowanych) prostych i złożonych w modelu. Elementy iFeature otworów przebijanych zawierają przypisane cechy, które można odtworzyć w tabeli otworu wybijanego na rysunku.
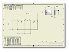
- Zagięcia utworzone przez elementy mają wyświetloną linię środkową oraz zakresy gięcia na rozwinięciu blachy. Wspomniane zagięcia można w prosty sposób zidentyfikować w Tabeli gięcia na rysunku, który zawiera istotne atrybuty wykonania.
- Rozwinięcie blachy modelu zagiętego można utworzyć w prosty sposób. Stanowi ono dokładną reprezentację wyprostowanych obszarów zagięć pomiędzy elementami przyległymi. Wielkość wyprostowanych obszarów zagięć zależy od Reguły rozwijania określonej w aktywnych Regułach konstrukcji blachowych używanych podczas rozpoczęcia nowego modelu z konstrukcji blachowej z szablonu.
 Co dalej? — Kontynuuj zapoznawanie się z funkcjami dotyczącymi konstrukcji blachowych, wykonując ćwiczenie Części konstrukcji blachowych — Część 2.
Wstecz
Kliknij tutaj, aby powrócić do strony głównej ćwiczeń