Umieszczanie tabeli otworów przebijanych

  1. Na wstążce kliknij kartę Opis panel Tabela Widok otworu (Użyj strzałki w dół znajdującej się po prawej stronie otworu, aby wyświetlić widok otworu).
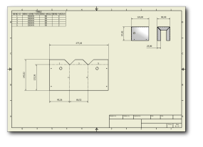
  2. Przesuwaj kursor nad widokiem rozwinięcia blachy, aż pojawi się kropkowana czerwona obwiednia widoku, i kliknij, aby wybrać widok.
  3. Przesuń kursor cząstkowego elementu odniesienia rozwinięcia blachy, aż dotrzesz do końca lewego narożnika i wyświetli się „punkt” wiązania.
  4. Kliknij, aby wybrać ten punkt jako odniesienie do wymiarowania otworów przebijanych.
  5. Przesuń wyświetlony kontur tabeli tak, aby był wyrównany do lewego dolnego narożnika ramki rysunku. Gdy kursor zmieni się na wskazanie wiązania „w punkcie”, kliknij, by wstawić tabelę.
  6. Prawym przyciskiem myszy kliknij w obszarze tabeli i z wyświetlonego menu kontekstowego wybierz polecenie Edytuj tabelę otworu, aby wyświetlić okno dialogowe Edytuj tabelę otworu: Typ widoku.
  7. Kliknij opcję Wybór kolumn na karcie Formatowanie znajdującej się w wyświetlonym oknie dialogowym, aby wyświetlić okno dialogowe Edytuj tabelę otworu: Wybór kolumn.
  8. W tym oknie dialogowym wybierz opcję Opis z listy Wybranych właściwości, a następnie kliknij Usuń.
  9. Z listy Dostępne właściwości wybierz opcję ŚREDNICA OTWORU, a następnie kliknij Dodaj.
  10. Z listy Dostępne właściwości wybierz opcję ID OTWORU PRZEBIJANEGO, a następnie kliknij Dodaj.
  11. Kliknij przycisk OK, aby zatwierdzić nowy układ kolumn i zamknąć okno Wybierz kolumny tabeli otworów.
  12. Kliknij polecenie OK w oknie dialogowym Edytuj tabelę otworu: Typ widoku, aby aktualizować tabelę przy użyciu nowego układu kolumn i zamknąć okno dialogowe.
  13. Zapisz rysunek rozwinięcia blachy osłony.

Wstecz | Dalej