
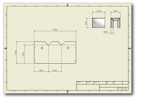
-  Otwórz plik 2mm_inplace_guard_start.idw, znajdujący się w katalogu \Tutorial Files\Cylinder Clamp.Uwaga: Rysunek zawiera kilka widoków ukończonej przykładowej osłony, która jest dostępna z przykładowym plikiem ćwiczenia. 
- Na wstążce kliknij 
kartę Opis
 panel Tabela panel Tabela Ogólne
. Pojawia się okno dialogowe Tabela i aktywny jest kursor wyboru widoku w oknie graficznym. Ogólne
. Pojawia się okno dialogowe Tabela i aktywny jest kursor wyboru widoku w oknie graficznym.
- Przesuwaj kursor nad widokiem rozwinięcia blachy, aż pojawi się kropkowana czerwona obwiednia widoku.
- Kliknij, aby wybrać widok rozwinięcia blachy jako widok źródłowy Tabeli ogólnej.Uwaga: W Tabeli ogólnej znajdują się kolumny wyboru charakterystyczne dla wybranego typu widoku źródłowego. W tym wypadku w tabeli znajdują się informacje o zagięciu. 
- Kliknij polecenie OK w oknie dialogowym tabeli, aby zaakceptować wybór domyślny, zamknąć okno dialogowe i umieścić tabelę.
- Przesuń kursor nad lewy górny róg ramki rysunkowej. Gdy kursor zmieni się na wskazanie wiązania „w punkcie”, kliknij, by wstawić tabelę.
Utworzy się tabela z kolumnami: ID zagięcia, Kierunek zagięcia, Kąt zagięcia oraz Promień zagięcia, zawierającymi wartości każdego z zagięć w wybranym widoku. Zwróć uwagę, że do widoku rozwinięcia blachy znajdującego się niedaleko linii środkowych zagięcia zostały dodane numery ID zagięć. 
Określona kolejność zagięć nie będzie się zgadzać z kolejnością ich wykonania w warsztacie produkcyjnym. Zmiany kolejności gięcia oraz wyrównanie tabeli omówione są w ćwiczeniu Konstrukcje blachowe — część 2.
Następnie na rysunku umieścisz tabelę otworów przebijanych.
 Wstecz | Dalej