Neste tutorial você aprendeu um fluxo de trabalho básico para criar uma peça de chapa de metal e inserir anotações na chapa de metal em uma planificação. Alguns pontos-chave deste exercício:
- Trabalhando no contexto de uma montagem, você pode utilizar a geometria de montagem para definir aspectos chaves do desenho da peça de chapa de metal.
- Com frequência, as operações de chapas de metal são criadas de um lado ou de outro de uma seleção para levar em conta a espessura do material ou o raio da dobra.
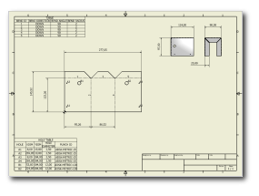
- As iFeatures de perfuração das chapas de metal simplificam a criação de operações de corte simples e complexos (e moldados)do seu modelo. As iFeatures de perfuração incluem atributos que podem ser recuperados em uma tabela de perfuração nos seus desenhos.
- As dobras criadas utilizando operações exibem um eixo da dobra e extensões de dobra na planificação. Os dobras podem ser facilmente identificadas em uma tabela de Dobra no seu desenho que contém atributos de fabricação importantes.
- A planificação do seu modelo dobrado pode ser criada facilmente e fornece uma representação precisa das zonas dobradas planificadas entre operações adjacentes. O tamanho das zonas de dobras planificadas são determinadas pela Regra de Desdobramento definida na Regra de Chapas de Metal ativa quando você iniciou um novo modelo de chapa de metal de um modelo.
O que há a seguir? Como passo seguinte, continue a explorar a funcionalidade das chapas de metal completando o tutorial Chapas de Metal Parte 2.
Anterior
Clique aqui para retornar para a página inicial dos tutoriais Tutoriais