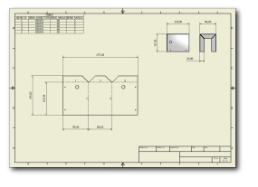
Inserção de uma tabela de perfuração.

  1. Na faixa de opções, clique na guia Anotar painel Tabela Vista do furo (use a seta para baixo à direita do Furo para exibir Vista do furo).
  2. Mova o cursor sobre a vista da planificação até você visualizar um ponto vermelho limite da vista destacado, então clique para selecionar a vista.
  3. Mova o cursor do elemento de referência ao longo da aresta inferior da planificação, até você chegar no canto mais à esquerda até estar sobre a restrição indicada.
  4. Clique para selecionar o ponto como referência para dimensionar os furos perfurados.
  5. Mova o perfil visualizado da tabela para alinhá-lo com o canto inferir esquerdo da borda de desenho. Quando estiver sobre a restrição, clique para a colocação da tabela.
  6. Clique sobre a tabela com o botão direito e selecione Editar Tabela de Furo do contexto do menu para visualizar Editar Tabela de Furo: caixa de diálogo Tipo de Vista.
  7. Clique em Coluna Selecionada na guia Formatando da caixa de diálogo para visualizar a caixa de diálogo de Selecionador de Coluna da Tabela de Furo.
  8. Nesta caixa de diálogo, selecione Descrição da lista de Propriedades Selecionadas, e clique em Remover.
  9. Selecione DIÂMETRO DO FURO na lista de Propriedades Disponíveis, e clique me Adicionar.
  10. Selecione ID da PERFURAÇÃO na lista de Propriedades Disponíveis e clique em Adicionar.
  11. Clique em OK para aceitar o novo arranjo de colunas e finalizar a caixa de diálogo Selecionador de Coluna da Tabela de Furo.
  12. Clique em OK na caixa de diálogo Editar Tabela de Furo:Tipo de Vista para atualizar a tabela utilizando o novo arranjo de colunas e finalizar a caixa de diálogo.
  13. Salve o desenho da planificação da proteção.

Anterior | Avançar