При размещении на листе отдельного вида для скрытия частей вида и выделение одной области можно использовать следующие методы:
- Область подрезки: область подрезки используется для выделения на виде определенной области модели здания. См. раздел Области подрезки.
- Области маскировки: области маскировки используются для скрытия областей вида (выделенных прямоугольной областью маскировки), не являющихся значимыми. См. раздел Области маскировки.
Совет: Если требуется сохранить исходную версию вида, то предварительно скопируйте вид. (Щелкните в Диспетчере проектов правой кнопкой мыши имя вида и выберите команду "Копирование вида"

"Копировать".) Откройте скопированный вид и примените к нему области подрезки и области маскировки. Затем разместите копию вида на листе.
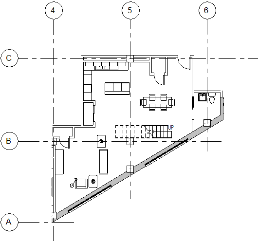
Пример
На следующем плане этажа области маскировки затеняют верхние правый и левый углы блока помещения для скрытия незначимой геометрии модели.