Vorbereiten und Exportieren der DWG-Datei

In dieser Lektion bereiten Sie eine 2D-DWG-Datei als Basis für das 3D-Hausmodell vor.

Anmerkung: Wenn Sie keine funktionsfähige Version von AutoCAD besitzen, fahren Sie mit der nächsten Lektion fort: Importieren der DWG-Datei. Sie finden eine DWG-Datei mit den erforderlichen Vorbereitungen im Ordner \import\AutoCAD files.

Öffnen der Datei:

  1. Starten Sie AutoCAD 2014.
    Anmerkung: Sie können diese DWG-Datei mit einer AutoCAD-Version ab 2007 öffnen. Beachten Sie dabei jedoch, dass sich die Benutzeroberfläche geändert hat (insbesondere die Steuerelemente für Layer) und die in dieser Lektion beschriebenen Schritte daher nicht direkt übertragbar sind.
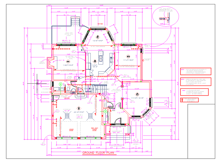
  2. Wählen Sie im Menü "Anwendung" die Option "Öffnen". Öffnen Sie im Dateidialogfeld den Ordner \3ds max design 2014 tutorials\import\AutoCAD_files\. Öffnen Sie wt_start.dwg.

    Bei dieser Datei handelt es sich um den Grundriss eines Hauses.

    Wenn Sie eine aktuelle Version von AutoCAD verwenden, wird diese Meldung angezeigt:

    Klicken Sie auf Schließen, um das Dialogfeld zu schließen. Speichern Sie die Datei, aber mit einem anderen Namen.

Einfrieren der Layer:

    Diese Datei enthält viele Elemente, die für die 3D-Besichtigung nicht erforderlich sind. Mithilfe des Layer-Managers können Sie alle Elemente ausblenden, die Sie nicht verwenden werden. Für diesen Lehrgang sind nur die Layer 01-Walls und 02-Windows erforderlich.

  1. Klicken Sie auf der Multifunktionsleiste Registerkarte "Start" Gruppe "Layer" auf (Layereigenschaften).

    AutoCAD öffnet das Dialogfeld "Layereigenschaften-Manager".

  2. Wählen Sie im Layereigenschaften-Manager den Layer 01-Walls aus.
  3. Klicken Sie im Werkzeugkasten des Layereigenschaften-Managers auf (Als aktuell einstellen), um diesen Layer zum aktuellen Layer zu machen.
  4. Klicken Sie im linken Fensterbereich mit der rechten Maustaste auf "Alle verwendeten Layer" und wählen dann "Sichtbarkeit" "Gefroren", um alle Layer einzufrieren. Es wird ein Dialogfeld mit der Meldung angezeigt, dass der aktuelle Layer nicht eingefroren werden kann. Klicken Sie auf "Schließen".
  5. Klicken Sie auf das Symbol , um auch den Layer 02-Windows freizugeben.
  6. Klicken Sie auf (Neuer Layer). Nennen Sie diesen neuen Layer 3DWalls. Ändern Sie die Farbe des Layers mit dem quadratischen Farbsymbol in der Farbspalte in ein dunkles Blau.
  7. Markieren Sie den neuen Layer (3DWalls) und klicken dann auf (Als aktuell einstellen).
  8. Schließen Sie den Layer-Manager.

    Die Zeichnung sollte zeigen jetzt Wände, Fenster und Türen zeigen.

Erstellen von Polylinien:

    Um in 3ds Max effizient 3D-Wände erstellen zu können, müssen Sie mithilfe der Wandlinien und des Befehls "Bpoly" Polylinien erstellen. Dieser Befehl zeichnet eine geschlossene Polylinie um die Begrenzung eines ausgewählten Felds, wobei die ursprünglichen Wandlinien unverändert bleiben. Die Verwendung von Polylinien anstelle von Linien vereinfacht die spätere Erstellung von Wänden in 3ds Max sehr.

  1. Stellen Sie sicher, dass die Option "Objektfang" deaktiviert ist. (Sie können die Option "Objektfang" durch Drücken der Taste F9 deaktivieren bzw. aktivieren.)
  2. Zoomen Sie im Ansichtsfenster heraus, bis Sie alle Wandlinien sehen können. Dies ist erforderlich, damit der Befehl "Bpoly" funktioniert.
  3. Geben Sie bpoly ein, und drücken Sie anschließend .

    AutoCAD öffnet das Dialogfeld "Umgrenzung".

  4. Klicken Sie im Dialogfeld "Umgrenzung" auf (Punkte auswählen).
  5. Klicken Sie in der folgenden Abbildung ins Innere der Wand, und drücken Sie anschließend .

    AutoCAD erstellt eine Polylinie.

  6. Geben Sie erneut bpoly ein. Klicken Sie erneut auf "Punkte auswählen" und dann in der folgenden Abbildung ins Innere der Wand. Drücken Sie . Diesmal wurde die Polylinie nicht ordnungsgemäß erstellt. Drücken Sie die Tastenkombination +Z, um diesen letzten Vorgang rückgängig zu machen.

    Die Polylinie wurde nicht erstellt, weil die Wand nicht durchgehend ist. Sie müssen die Lücke schließen, bevor Sie eine Polylinie erstellen können.

  7. Drücken Sie , um den Befehl "Bpoly" zu beenden.
  8. Zoomen Sie heran, bis Sie die Lücke zwischen den Wänden besser sehen können.
  9. Schließen Sie die Lücke, indem Sie die linke Linie bis zum Endpunkt der nächsten Wand verlängern. Klicken Sie auf die Linie, um sie auszuwählen, und ziehen Sie sie anschließend von diesem Endpunkt zum Endpunkt auf der anderen Wand.
  10. Zoomen Sie wieder heraus, bis Sie alle Wandlinien sehen können, und führen Sie den Befehl "Bpoly" dann erneut aus.

    Diesmal wird eine Polylinie erstellt.

  11. Erstellen Sie mithilfe des Befehls "Bpoly" Polylinien aus allen Wänden in der Zeichnungsdatei. Vergessen Sie nicht die kurzen Linien zwischen den Fenstern.

    Wenn Ihnen die Warnung angezeigt wird, dass keine gültige Schraffurumgrenzung gefunden wurde, zoomen Sie heraus, bis alle Wandlinien im Ansichtsfenster sichtbar sind, und führen Sie den Befehl "Bpoly" dann erneut aus.

  12. Drücken Sie , um die Polylinienerstellung zu beenden.
    Anmerkung: Die neuen Polylinien müssten die dunkelblaue Farbe des Layers 3DWalls besitzen.

Speichern der DWG-Datei:

Nächstes Thema

Importieren der DWG-Datei