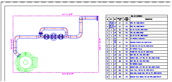
Erstellt eine Ortho-Stücklistentabelle.
Multifunktionsleiste:
Registerkarte Ortho-Ansicht
Tabelle einrichten
Befehlseingabe:
plantorthoplacebom
Die folgenden Aufforderungen werden angezeigt:
Ansichtsfenster wählen: Wählen Sie ein orthogonales Ansichtsfenster aus.
Erste Ecke angeben: Geben Sie die obere linke Ecke der Ortho-Stücklistentabelle ein.
Zweite Ecke angeben: Geben Sie die Tabellenbreite an. Die festgelegte Höhe wird ignoriert.
