Préparation et exportation du fichier DWG

Dans cette section, vous allez préparer un fichier DWG 2D pour qu'il serve de base au modèle de maison 3D.

Remarque : Si vous ne possédez pas une version actuelle d'AutoCAD, passez directement à la prochaine section, Importation du fichier DWG. Un fichier DWG préparé est disponible dans le dossier \import\AutoCAD files.

Ouvrez le fichier :

  1. Démarrez AutoCAD 2014.
    Remarque : Vous pouvez ouvrir ce fichier DWG avec une version plus ancienne telle qu'AutoCAD 2007, mais sachez que l'interface utilisateur a été modifiée (en particulier, pour les couches) et ne correspondra pas exactement aux étapes de cette leçon.
  2. Dans le menu Application, choisissez Ouvrir. Dans la boîte de dialogue de sélection de fichier, recherchez le dossier \3ds max design 2014 tutorials\import\AutoCAD_files\. Ouvrez le fichier wt_start.dwg.

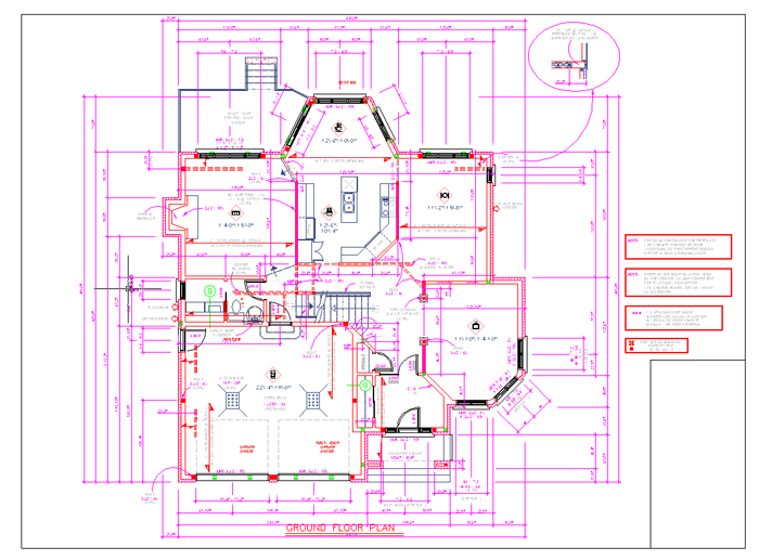
    Ce fichier est le plan au sol d'une maison.

    Si vous exécutez une version récente d'AutoCAD, le message suivant s'affiche :

    Cliquez sur Fermer pour fermer la boîte de dialogue. Cette action a pour effet d'enregistrer le fichier, mais sous un nom différent.

Gelez les couches :

    Ce fichier contient un ensemble d'éléments qui ne sont pas nécessaires au walkthrough 3D. A l'aide du gestionnaire de couches, vous pouvez masquer tous les éléments que vous n'allez pas utiliser. Les seules couches nécessaires à ce didacticiel sont les couches 01-Walls (Murs-01) et 02-Windows (Fenêtres-02).

  1. Sur le ruban Onglet Début Groupe de fonctions Calques, cliquez sur (Propriétés calque).

    AutoCAD ouvre la boîte de dialogue Gestionnaire des propriétés des calques.

  2. Dans le Barre de menu du Gestionnaire des propriétés des calques, cliquez pour sélectionner la couche 01-Murs.
  3. Dans la barre d'outils du Gestionnaire des propriétés des couches, cliquez sur (Définir courant) pour rendre cette couche courante.
  4. Dans le volet de gauche, cliquez avec le bouton droit de la souris sur Tous les calques utilisés et choisissez Visibilité Gelé pour geler toutes les couches. La boîte de dialogue apparaît pour vous informer que la couche courante ne peut pas être gelée. Cliquez sur Fermer.
  5. Cliquez sur l'icône pour dégeler la couche 02-Fenêtres également.
  6. Cliquez sur (Nouveau calque). Nommez cette Nouveau calque 3DWalls (Murs3D). Utilisez le carré de couleur de la colonne Couleur pour changer la couleur à bleu foncé.
  7. Mettez en surbrillance la Nouveau calque (Murs3D), puis cliquez sur (Définir courant).
  8. Fermez le Gestionnaire de couches.

    Le dessin doit désormais afficher les murs, les fenêtres et les portes.

Créez des polylignes :

    Pour créer des murs 3D de manière efficace dans 3ds Max, vous devez créer des polylignes à l'aide des lignes de murs et de la commande Bpoly. Cette commande permet de dessiner une polyligne fermée autour de la bordure d'un champ sélectionné, en laissant les lignes des murs d'origine intactes. L'utilisation de polylignes au lieu de lignes simplifie énormément la création future de murs dans 3ds Max.

  1. Vérifiez que l'option Accrochage est désactivée. (Le fait d'appuyer sur F9 bascule l'accrochage)
  2. Dans la fenêtre, effectuez un zoom arrière jusqu'à ce que vous voyiez toutes les lignes de murs. Cette manipulation est nécessaire au fonctionnement de la commande Bpoly.
  3. Entrez bpoly et appuyez sur .

    AutoCAD ouvre la Boîte de dialogue Créer un contour.

  4. Dans cette boîte de dialogue, cliquez sur (Choisir des points).
  5. Cliquez sur le mur présenté dans l'illustration suivante, puis appuyez sur .

    AutoCAD crée une polyligne.

  6. Saisissez à nouveau bpoly. Cliquez de nouveau sur Choisir des points, puis cliquez sur le mur présenté dans l'illustration suivante. Appuyez sur . Cette fois la polyligne n'a pas été créée correctement. Appuyez sur  + Z pour annuler cette dernière opération.

    La polyligne n'a pas été créée parce que le mur n'est pas continu. Vous devez combler cet espace pour pouvoir créer une polyligne.

  7. Appuyez sur pour quitter la commande Bpoly.
  8. Effectuez un zoom avant jusqu'à ce que vous ayez une meilleure vue de l'espace entre les murs.
  9. Comblez l'espace en étendant la ligne à gauche vers le bout du mur suivant. Cliquez sur la ligne pour la sélectionner, puis faites glisser son extrémité vers celle de l'autre mur.
  10. Effectuez un zoom arrière jusqu'à ce que vous voyiez de nouveau toutes les lignes du mur, puis répétez la commande Bpoly.

    Cette fois, une polyligne est créée.

  11. A l'aide de Bpoly, créez des polylignes à partir de tous les murs dans le fichier dessin. N'oubliez pas les petites lignes entre les fenêtres.

    Si un avertissement s'affiche stipulant "Contour de hachures correct introuvable", effectuez un zoom arrière de façon à ce que toutes les lignes de murs soient visibles dans la fenêtre, puis utilisez de nouveau la commande Bpoly.

  12. Appuyez sur la touche pour terminer la polyligne.
    Remarque : Les nouvelles polylignes devraient avoir la couleur bleu sombre de la couche 3DWalls (Murs3D).

Enregistrez le fichier DWG :

Section suivante

Importation du fichier DWG