Déplacez rapidement un composant le long d'un fil et insérez des composants fils.
Si le composant n'a pas été inséré au bon emplacement, vous pouvez le déplacer. Utilisez l'outil Déplacement rapide pour sélectionner un composant ou un numéro d'équipotentielle et le faire glisser le long du fil tout en conservant tous les éléments connectés. Vous pouvez sélectionner un fil ou un barreau de circuits entier et le placer rapidement dans une nouvelle position. Si des composants pères figurent parmi les éléments déplacés rapidement, le système vous demande si vous voulez les réévaluer.
L'outil Déplacement rapide fonctionne sur les numéros d'équipotentielles, les composants, les bornes, les modules E/S API, les oscillations des lignes de liaison en pointillés, les flèches de signalisation, les fils et les fils avec des boucles aux intersections.

Déplacement d'un composant


. Trouver
Sélectionnez un composant, un fil ou un numéro d'équipotentielle pour le DEPLACEMENT RAPIDE :
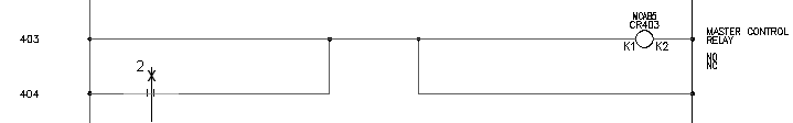
Sélectionnez le composant inséré à la référence de ligne 403
Le curseur prend la forme d'une boîte.
Sélectionnez un composant, un fil ou un numéro d'équipotentielle pour le DEPLACEMENT RAPIDE : vers
Déplacez le curseur vers la droite et cliquez, cliquez ensuite avec le bouton droit de la souris pour mettre fin à la commande
Le composant est déplacé vers sa nouvelle localisation.

Vous pouvez utiliser l'outil Déplacement rapide pour saisir un composant ou un numéro d'équipotentielle et le faire reculer ou avancer le long d'une liaison. Vous pouvez saisir un fil ou un barreau complet de circuit et le déplacer vers une autre position, tout en conservant le tout connecté.
Le procédure d'insertion d'un composant fils ne diffère de celle d'un composant père qu'au moment d'annoter le symbole.
Insertion d'un composant fils


. Trouver
Spécifiez le point d'insertion:
Positionnez le curseur sur le fil à la référence de ligne 404 à proximité du fil chaud et cliquez (1)

La boîte de dialogue Insérer/Modifier un composant fils apparaît. Notez qu'AutoCAD Electrical n'a pas affecté automatiquement un nom de repère au contact de relais : la mention générique "CR" apparaît simplement dans la zone d'édition. Déterminez le nom de repère du contact de relais. Un contact de relais est un composant fils qui doit être lié à une bobine de relais père sur un dessin du projet actif. Le fils obtient le même nom de repère que celui de la bobine de relais père.
Affectez le nom de repère en cliquant sur Père/Fils de même père et en choisissant le père dans le dessin. Ou cliquez sur le dessin ou le projet à sélectionner dans une liste de composants avec le même nom de famille.
MCAB5 CR403 RELAIS DE COMMANDE CENTRALE

Les valeurs du père sont immédiatement transférées au contact.
Repère de composant : CR403
Description : ligne 1 : CONTROLE CENTRAL
Description : ligne 2 : RELAIS
Référence croisée : 403
Code de localisation : MCAB5
Broches : broche 1 : A1X
Broches : broche 2 : A1Y

Le composant fils est inséré. Il fait l'objet d'un référencement croisé dynamique. La bobine est annotée avec le numéro de référence de ligne du nouveau contact fils. Le contact fils est annoté avec l'emplacement de la référence de ligne de la bobine du père.
