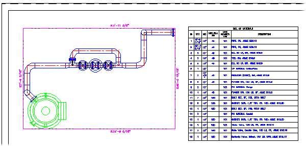
PLANTORTHOPLACEBOM

オルソ部品表を作成します。

アクセス方法

 リボン:  [オルソ ビュー]タブ [テーブル セットアップ]
 コマンド入力:  plantorthoplacebom

プロンプト

次のプロンプトが表示されます。

ビューポートを選択: オルソ ビューポートを選択します。

最初のコーナーを指定: オルソ部品表の左上を指定します。

2 番目のコーナーを指定: 表の幅を指定します。 指定された高さは無視されます。