拘束のリビール
寸法や位置合わせの拘束をビューに一時的に表示させ、モデルの要素のトラブルシューティングや修正を行います。
注:
この機能は、
Revit 2015 ソフトウェア リリース
の Autodesk Maintenance および Desktop Subscription を契約しているお客様のみがご利用いただけます。
ビデオ: 拘束のリビール
動画を視聴するにはJavaScript を有効にしてください。
ビュー コントロール バーで
(拘束のリビール)をクリックします。
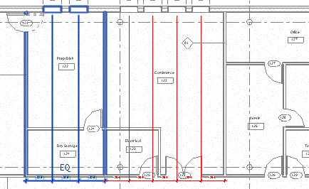
[拘束のリビール]作図領域には色付きで境界が表示され、[拘束のリビール]モードを使用していることを示します。すべての拘束が色付きで表示され、モデル要素はハーフトーン(グレー)で表示されます。
注:
このモードで拘束を見やすくするために、[細線]表示オプションが選択されていないことを確認します([表示]タブ
[グラフィックス]パネル
[細線])。
拘束された要素をハイライト表示するには、拘束を選択します。
次の例では、左側の拘束が選択されており、拘束されている 2 つの壁と 2 つの窓もハイライト表示されています。
省略可能: 拘束を削除するには、単に拘束を削除するか、ロックを解除します。
注:
スケッチ モードで要素に追加した拘束はハーフトーン カラーで表示されます。拘束を修正または削除するためにスケッチ モードに切り替えるには、要素をダブルクリックします。
ビュー コントロール バーで、
をクリックして「拘束のリビール」モードを終了します。
親トピック:
拘束
関連タスク
拘束を削除する
関連情報
拘束について