ビュー範囲は、平面図ビューにおけるオブジェクトの可視性と表示をコントロールする水平面のセットです。
すべての平面図ビューには、[ビュー範囲](表示可能な範囲)というプロパティがあります。ビュー範囲を定義する水平面は、上面、切断面、下面です。上部および下部クリップ面は、ビュー範囲の一番上と一番下の位置を表します。切断面は、ビュー内の所定の要素が切断されて表示されるときの高さを決める面のことです。この 3 つの面により、ビュー範囲のメイン範囲が定義されます。
[ビューの奥行き]は、メイン範囲の外側にある追加の面のことです。下部クリップ面の下にある要素を表示するには、ビューの奥行きを変更します。既定では、ビューの奥行きは下部クリップ面と一致します。
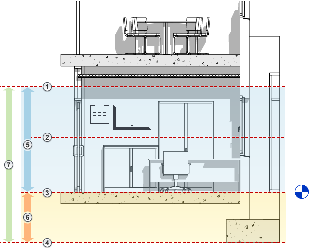
次の立面図は平面図ビューのビュー範囲 を表します。上面
、切断面
、下面
、オフセット(下面から)
、メイン範囲
、ビューの奥行き
。
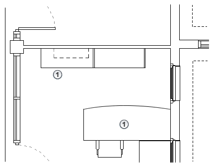
右側の平面図ビューはこのビュー範囲の結果を表しています。
![]() |
![]() |
平面図ビューでは、Revit LT は切断面と交差する要素を表示するために、次の規則を使用します。
切断面が交差する要素の表示には、次のような例外があります。
6 フィート(2 メートル)は、境界ボックスの上部からメイン ビュー範囲の下部まで計測されます。たとえば、上面が下部クリップ面の上方 6 フィートにある壁を作成する場合、壁は切断面で切り取られます。壁の上部が 6 フィート未満の場合は、切断面と交差する場合でも、壁全体が投影として表示されます。この動作は、壁の[上部の拘束]プロパティが[指定]に指定されている場合に常時発生します。
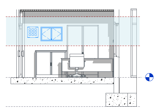
次の立面図の青色でハイライト表示されている部分は、切断面と交差する要素を表しています。
右側の平面図ビューには、次の内容が表示されています。
切断線の太さを使用して描画されている要素。(壁、ドア、窓)
切断不可能なため、要素は投影線の太さを使用して描画されています(収納設備)。
![]() |
![]() |
平面図ビューでは、Revit LT は、要素カテゴリの投影線の太さを使用してこれらの要素を描画します。
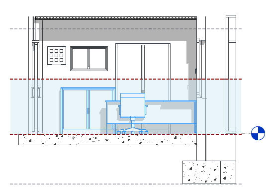
次の立面図の青色でハイライト表示されている部分は、切断面の下にあり、下部クリップ面の上にある要素を表しています。
右側の平面図ビューには、次の内容が表示されています。
切断面と交差していないため、投影線の太さを使用して描画されている要素。(キャビネット、机、椅子)
![]() |
![]() |
要素のカテゴリに関係なく、ビューの奥行き内にある要素は <背景> の線種を使用して描画されます。
例外: ビュー範囲の外に配置された床、構造床、基礎スラブ、階段、スロープは、メイン範囲の下部の下 4 フィート(約 1.22 メートル)にある調整済み範囲を使用します。この調整された範囲内では、カテゴリの投影線の太さを使用して要素が描画されます。要素がこの調整された範囲の外側にあり、ビューの奥行き内にある場合、これらの要素は <背景> の線種を使用して描画されます。
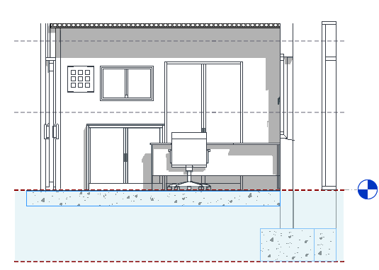
たとえば、次の立面図の青色でハイライト表示されている部分は、下部クリップ面の下にあり、ビューの奥行き内にある要素を表しています。
右側の平面図ビューには、次の内容が表示されています。
<背景> の線種を使用して描画されているビューの奥行き内にある要素(基礎)。
例外の条件に一致するため、カテゴリの投影線の太さを使用して描画されている要素。
![]() |
![]() |
これらの要素は、カテゴリが窓、収納設備、一般モデル以外の場合、平面図ビューに表示されません。これらの 3 つのカテゴリの要素は、上方から見た投影線の太さを使用して描画されます。
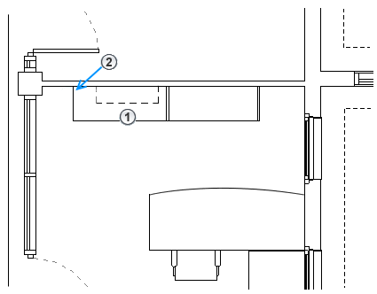
たとえば、次の立面図の青色でハイライト表示されている部分は、ビュー範囲の上面から切断面の間にある要素を表しています。
右側の平面図ビューには、次の内容が表示されています。
投影線の太さを使用して描画されている壁に取り付けられた収納設備。この場合、収納設備ファミリには、投影線に破線スタイルが定義されています。
カテゴリが窓、収納設備、一般モデルではないため、壁取り付け用燭台(照明カテゴリ)は平面図に描画されていません。
![]() |
![]() |