DWG 파일 준비 및 내보내기

이 단원에서는 3D 집 모델의 기초로 2D DWG 파일을 준비합니다.

주: 실행 중인 AutoCAD 버전이 없으면 다음 단원인 DWG 파일 가져오기로 건너뛰십시오. 필요한 준비 사항이 포함된 DWG 파일은 \import\AutoCAD files 폴더에 있습니다.

파일 열기:

  1. AutoCAD 2014를 시작합니다.
    주: AutoCAD 2007과 같은 이전 버전에서 이 DWG 파일을 열 수 있지만 사용자 인터페이스(특히, 레이어)가 변경되었으며 이 단원의 단계와 정확하게 일치하지 않는다는 점에 유의하십시오.
  2. 응용 프로그램 메뉴에서 열기를 선택합니다. 파일 대화상자에서 ₩3ds max design 2014 tutorials₩import₩AutoCAD_files₩ 폴더를 찾습니다. wt_start.dwg를 엽니다.

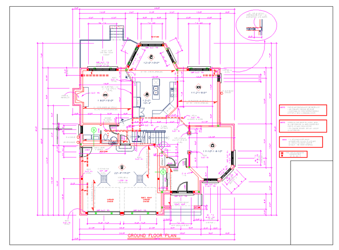
    이 파일은 집의 지면 계획입니다.

    최신 버전의 AutoCAD를 실행 중인 경우 다음 메시지가 나타납니다.

    닫기를 클릭하여 이 대화상자를 닫습니다. 파일을 저장하지만 다른 파일 이름으로 저장합니다.

레이어 고정:

    이 파일에는 3D 이동 경로에 필요 없는 요소가 많습니다. 레이어 관리자를 사용하면 사용하지 않을 요소를 모두 숨길 수 있습니다. 이 자습서에는 01-Walls02-Windows 레이어만 필요합니다.

  1. 리본 홈 탭 레이어 패널에서 (레이어 특성)을 클릭합니다.

    AutoCAD에서 레이어 특성 관리자 대화상자가 열립니다.

  2. 레이어 특성 관리자에서 01-Walls 레이어를 클릭하여 선택합니다.
  3. 레이어 특성 관리자 도구 모음에서 (현재 설정)을 클릭하여 이 레이어를 현재로 만듭니다.
  4. 왼쪽 창에서 사용된 모든 레이어를 마우스 오른쪽 버튼으로 클릭하고 가시성 고정을 선택하여 모든 레이어를 고정합니다. 현재 레이어는 고정할 수 없음을 알리는 대화상자가 나타납니다. 닫기를 클릭합니다.
  5. 아이콘을 클릭하여 02-Windows 레이어도 고정 해제합니다.
  6. (새 레이어)를 클릭합니다. 이 새 레이어의 이름을 3DWalls로 지정합니다. 색상 열에서 정사각형 색상 아이콘을 사용하여 해당 색상을 진한 파란색으로 변경합니다.
  7. 새 레이어(3DWalls)를 강조 표시하고 (현재 설정)을 클릭합니다.
  8. 레이어 관리자를 닫습니다.

    이제 도면에 벽, 창 및 문이 표시됩니다.

폴리라인 만들기:

    3ds Max에서 효과적으로 3D 벽을 만들려면 벽 선과 Bpoly 명령을 사용하여 폴리라인을 만들어야 합니다. 이 명령을 수행하면 선택한 필드의 경계 주위에 폐쇄된 폴리라인이 그려지고 원래 벽 선은 그대로 유지됩니다. 선 대신 폴리라인을 사용하면 나중에 3ds Max에서 매우 간단하게 벽을 만들 수 있습니다.

  1. 스냅이 꺼져 있는지 확인합니다. F9 키를 누르면 스냅이 토글됩니다.
  2. 뷰포트에서 모든 벽 선이 표시될 때까지 축소합니다. 이 작업은 Bpoly 명령이 작동되는 데 필요합니다.
  3. bpoly를 입력하고 키를 누릅니다.

    AutoCAD에 경계 작성 대화상자가 열립니다.

  4. 경계 작성 대화상자에서 (점 선택)을 클릭합니다.
  5. 다음 그림에 표시된 벽 내부를 클릭한 다음 키를 누릅니다.

    AutoCAD에 폴리라인이 만들어집니다.

  6. bpoly를 다시 입력합니다. 점 선택을 다시 클릭한 후 다음 그림에 표시된 벽 내부를 클릭합니다. 키를 누릅니다. 이번에는 폴리라인이 제대로 만들어지지 않았습니다. +Z를 눌러 마지막 이 작업을 실행 취소합니다.

    벽이 연속되지 않기 때문에 폴리라인이 만들어지지 않았습니다. 폴리라인을 만들기 전에 간격을 닫아야 합니다.

  7. 키를 눌러 Bpoly 명령을 종료합니다.
  8. 벽 사이의 간격이 더 잘 표시될 때까지 확대합니다.
  9. 왼쪽의 선을 다음 벽의 끝점까지 확장하여 간격을 수정합니다. 선을 클릭하여 선택한 다음 끝점에서 다른 벽의 끝점까지 드래그합니다.
  10. 모든 벽 선이 다시 표시될 때까지 축소한 다음 Bpoly 명령을 반복합니다.

    이번에는 폴리라인이 만들어집니다.

  11. Bpoly를 사용하여 도면 파일의 모든 벽에서 폴리라인을 만듭니다. 창 사이의 작은 선을 잊지 마십시오.

    "유효한 해치 경계를 찾지 못함"이라는 경고가 표시되면 축소하여 모든 벽 선이 뷰포트에 표시되도록 한 다음 Bpoly 명령을 다시 사용합니다.

  12. 키를 눌러 폴리선 만들기를 종료합니다.
    주: 새 폴리라인에는 3DWalls 레이어의 진한 파란색이 적용되어 있어야 합니다.

DWG 파일 저장:

다음

DWG 파일 가져오기