Операция подрезки вида

Операции обрезки обеспечивают средства обрезки видов чертежа с определенной границей. Операция обрезки выполняется на существующих видах за исключением следующих типов видов:

На обрезанных видах можно выполнять следующие операции с видом:

Операции обрезки могут выполняться на виде с круговыми и прямоугольными фигурами или на предварительно определенном эскизе вида.

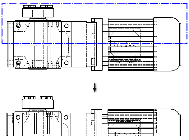
На следующем рисунке показан результат операции обрезки.

Виды, которые можно обрезать

Обрезанные виды создаются путем изменения существующих видов чертежа.

Операции обрезки и их влияние на аннотации

Операции обрезки поддерживают все типы пояснений на чертеже. Аннотации могут привязываться к конечным точкам обрезанных геометрических объектов, включая ребра, образуемые краями обрезки, если они отображаются.

Размеры

Обрезка влияет на существующие размеры листа. Когда якоря аннотаций утрачиваются, аннотации становятся неполноценными.

Осевые линии и маркеры центра

Обрезка влияет на существующие осевые линии и маркеры центра всех типов. Когда якоря утрачиваются, аннотации становятся неполноценными.