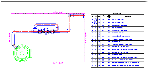
Создание таблицы спецификации двумерного чертежа.
Лента:
Вкладка "Ортогональный вид"
"Настройка таблицы"
Ввод команды:
plantorthoplacebom
Отображаются следующие запросы.
Выберите видовой экран: выберите видовой экран двумерного чертежа.
Укажите первый угол: укажите левый верхний угол таблицы спецификации двумерного чертежа.
Укажите второй угол: укажите ширину таблицы. Заданная высота не учитывается.
