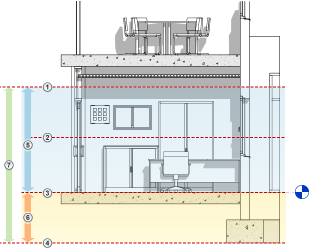
Секущим диапазоном называется набор горизонтальных плоскостей, с помощью которых можно управлять видимостью и представлением объектов на виде в плане.
Каждый вид плана имеет свойство секущий диапазон. К горизонтальным плоскостям, определяющим секущий диапазон, относятся "Верхняя", "Секущая" и "Нижняя" плоскости. Верхняя и нижняя секущие плоскости представляют собой самую верхнюю и самую нижнюю части секущего диапазона. Секущая плоскость определяет высоту, на которой конкретные элементы вида отображаются как вырез. Эти три плоскости определяют основной секущий диапазон.
Глубина проецирования — это дополнительная плоскость за пределами основного секущего диапазона. Изменение глубины проецирования позволяет отобразить элементы, расположенные под нижней секущей плоскостью. Глубина проецирования по умолчанию совпадает с уровнем нижней секущей плоскости.
На следующем виде фасада показан секущий диапазон вида в плане: "Верхняя"
, "Секущая плоскость"
, "Нижняя"
, "Смещение" (снизу)
, "Основной секущий диапазон"
и "Глубина проецирования"
.
На виде в плане справа показан результат для данного секущего диапазона.
![]() |
![]() |
На виде в плане соблюдаются следующие правила Revit касательно представления элементов, которые пересекает секущая плоскость:
К исключениям отображения элементов, пересекаемых секущей плоскостью, относятся следующие:
6 футов (или 2 метра) измеряются от верха ограничивающей рамки до нижней плоскости основного секущего диапазона. Например, при создании стены, возвышающейся на 6 футов над нижней секущей плоскостью, данная стена будет разрезана по секущей плоскости. Если верх стены будет находиться ниже чем на 6 футов, вся стена будет показана в виде проекции, даже там, где она пересекает секущую плоскость. Это происходит в случаях, когда в качестве значения свойства "Зависимость сверху" для стены выбрано "Неприсоединенная".
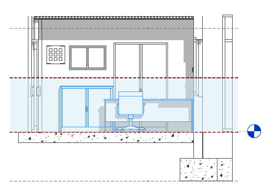
На следующем виде фасада элементы, пересекающие секущую плоскость, выделены синим цветом.
На виде в плане справа показано следующее:
Элементы, создаваемые с применением веса линий разреза (стены, дверь и окно)
Невырезаемые элементы, создаваемые с применением веса линий проекции (шкафы).
![]() |
![]() |
На виде в плане в программе Revit эти элементы строятся с применением веса линий проекции категории элементов.
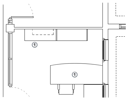
На следующем виде фасада элементы, находящиеся под секущей плоскостью и над нижним пределом секущего диапазона, выделены синим цветом.
На виде в плане справа показано следующее:
Элементы, которые создаются с применением веса линий проекции, поскольку не пересекаются секущей плоскостью (шкаф, стол и стул)
![]() |
![]() |
Элементы в пределах глубины проецирования создаются с применением стиля линий <Вне пределов> вне зависимости от категории элемента.
Исключения: для перекрытий, несущих перекрытий, фундаментных плит, лестниц и пандусов, находящихся за пределами секущего диапазона, используется скорректированный диапазон, который на 4 фута (примерно 1,22 м) ниже нижней плоскости основного диапазона. В пределах этого скорректированного диапазона элементы создаются с применением веса линий проекции для данной категории. Если же они находятся вне пределов скорректированного диапазона, но в пределах глубины проецирования, эти элементы создаются с применением стиля линий <Вне пределов>.
К примеру, на следующем виде фасада элементы, расположенные ниже нижней секущей плоскости и в пределах глубины проецирования, выделены синим цветом.
На виде в плане справа показано следующее:
Элемент (фундамент) в пределах глубины проецирования, построенный с применением стиля линий <Вне пределов>.
Элемент, построенный с применением веса линий проекции для определенной категории и удовлетворяющий условиям исключения.
![]() |
![]() |
Эти элементы отображаются на виде в плане только в том случае, если они относятся к категориям окон, шкафов или типовых моделей. Элементы этих трех категорий строятся с применением веса линий проекции так, как если бы они рассматривались сверху.
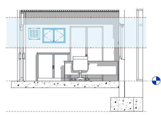
К примеру, на следующем виде фасада элементы, расположенные между секущей плоскостью и верхним пределом секущего диапазона, выделены синим цветом.
На виде в плане справа показано следующее:
Настенный шкаф, построенный с применением веса линий проекции. В этом случае семейству шкафов присваивается стиль штриховых линий проецирования.
Настенное бра (из категории осветительных приборов) не отображается на плане, поскольку оно не относится к категориям окон, шкафов или типовых моделей.
![]() |
![]() |