沿导线快速移动元件,然后插入辅元件。
如果元件未在正确位置插入,可以快速移动该元件。使用“快速移动”工具可以选择元件或线号,并在保持所有内容都连接的情况下沿导线来回滑动。您可以选择回路中的一条导线或整个横档,然后将其快速移动到新位置。如果快速移动的条目之间存在任何主元件,则系统将询问您是否要重新标记快速移动的元件。
“快速移动”工具可作用于线号、元件、端子、PLC I\O 模块、虚连接线中的振动、信号箭头、导线以及具有导线交叉回路的导线。

快速移动元件


。 查找
选择用于快速移动的元件、导线或线号:
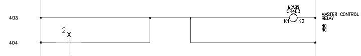
选择插入到线参考 403 处的元件
光标将变成方框。
选择用于快速移动的元件、导线或线号:到
将光标移到右侧并单击,然后单击鼠标右键退出命令
元件即被移到新位置。

使用“快速移动”工具可以捕捉一个元件或线号,然后沿导线前后滑动。捕捉一条导线或回路的整个横档,然后将它们快速移动到新位置,同时保留所有连接关系。
插入主元件的步骤与插入辅元件的步骤基本相同,不同之处在于注释符号的时间。
插入辅元件


。 查找
指定插入点:
将光标放置在线参考 404 上距离火线近的导线上,然后单击 (1)

将显示“插入/编辑元件”对话框。请注意,AutoCAD Electrical 没有自动为继电器触点指定标记名称;在编辑框中仅有一个通用“CR”。确定继电器触点标记名称。继电器触点是一个辅元件,必须链接到激活项目的图形中的主继电器线圈。辅项会获取主继电器线圈上的标记名称。
通过单击“主项/同级项”并在图形中拾取主项指定标记名称。或者,单击“图形”或“项目”以从种类名称相同的元件列表中进行选择。
MCAB5 CR403 MASTER CONTROL RELAY

系统会立即将主项的值传递给触点。
元件标记: CR403
描述:第 1 行: 主控制
描述:第 2 行: 继电器
交互参考: 403
位置代号: MCAB5
引脚:引脚 1: A1X
引脚:引脚 2: A1Y

辅元件即被插入。系统会实时交互参考该辅元件。将新辅触点的线参考号添加为线圈注释。将主线圈的线参考位置添加为辅触点注释。
